Представяме просторен тристаен апартамент в 'COMFORT RESIDENCE - Малинова долина II' - ексклузивен жилищен проект, дело на един от най-талантливите и модерни столични архитекти. Строителството ще бъде реализирано от инвеститорска компания с безупречна репутация и богата строителна история. Инвеститорският тандем разполага с повече от 35 завършени сгради и комплекси в южните квартали на столицата София, морските и планинските курорти.
СТАРТИРАЛО СТРОИТЕЛСТВО! БЕЗ КОМИСИОНА ОТ КУПУВАЧА!
Планирано завършване - до края на 2026 г.
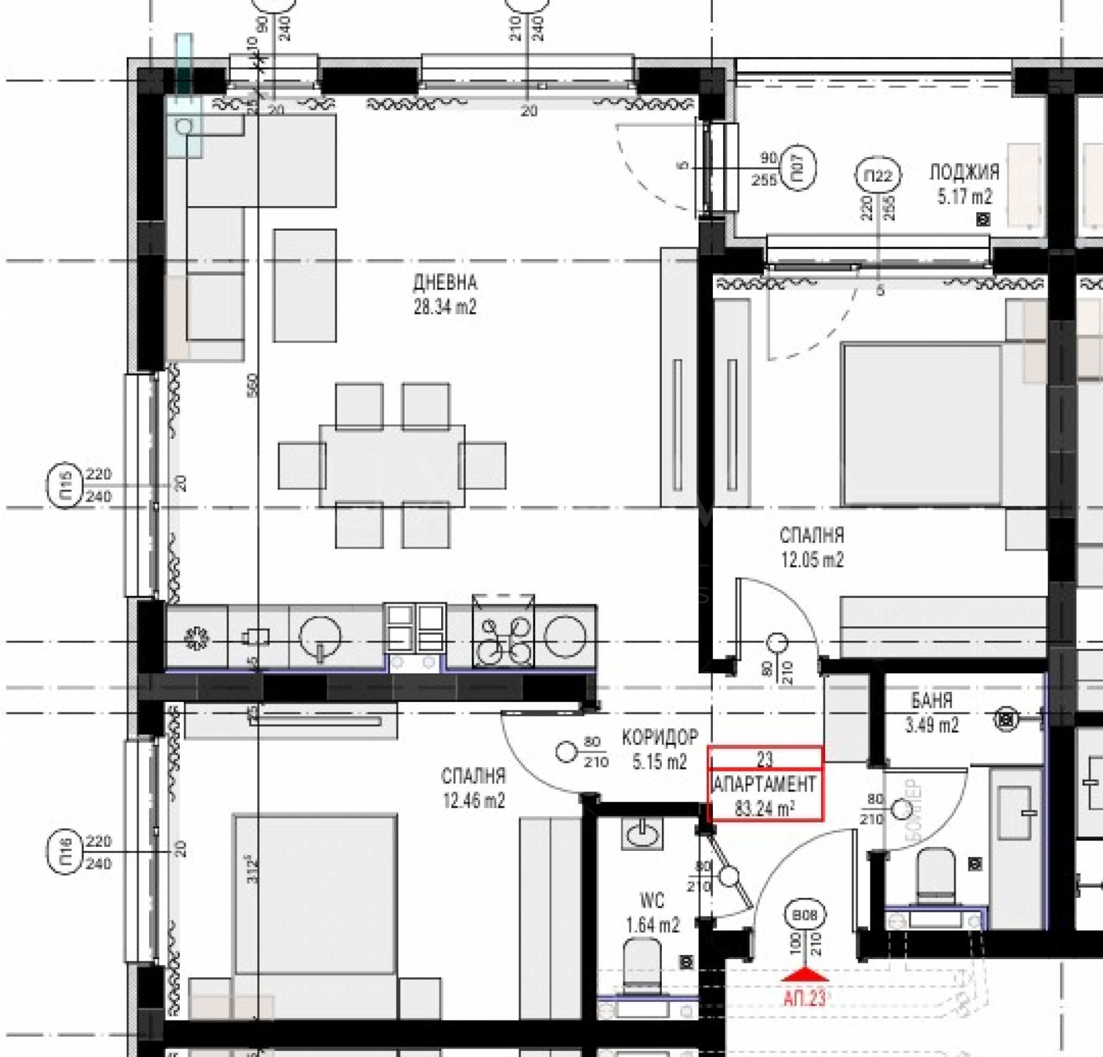
Апартамент 23 е разположен на 3-ти етаж в сградата и има застроена площ от 83.24 кв.м, с разпределение: коридор, баня/тоалетна, тоалетна, светла дневна с кухня и трапезария, две комфортни спални, тераса. Жилището е с включен в цената склад - 3.38 кв.м.
Имотът се издава в степен на завършеност по БДС (на шпакловка и замазка). Отоплението е на газ и климатици.
Има възможност за закупуване на подземни паркоместа на цени от 50 525 лв. (25 833 евро) без ДДС или наземни с цени от 34 227 лв. (17 500 евро) без ДДС.
Локация
Новата жилищна сграда на ТАСКОВ & СТОЯНОВ от поредицата COMFORT RESIDENCE е разположена в новообразувания район на кв. 'Малинова долина', в близост до Националната спортна академия 'Васил Левски' (НСА). Проектът е дело на утвърденото и многократно награждавано архитектурно бюро STUDIO CREATIVE, с което инвеститорът сътрудничи дългосрочно.
Локацията е с отлична свързаност близо до бъдеща метростанция в района, от линията 'Надежда - Лозенец', до университетите на 'Студентски град', НСА и Зимния дворец, с бърз достъп до 'Симеоновско шосе' и Околовръстен път, Ring Mall, Бизнес парк София. Удобен е и достъпът до природен парк Витоша и централната част на ...
Цената на имота е 200 000 евро / 391 166.00 лв. без ДДС или 240 000 евро / 469 399.20 лв. с ДДС. Данъчен кредит може да се ползва при определени условия.
За повече информация свържете се с нас и цитирайте референтния номер на имота. Моля, кажете, че сте видeли обявата в този сайт.
Референтен номер: SOF-135323
Тел: 0882 817 565, 02 425 69 26
Отговорен брокер:Любин Чаков
Без комисиона от купувача
Виж всички обяви в luximmo.bazar.bg или тук
        
       
         
         
         
         
         
         
         
         
         
         
         
         
         
         
         
         
         
             
             
             
             
             
             
             
             
             
             
             
             
             
             
             
             
            


