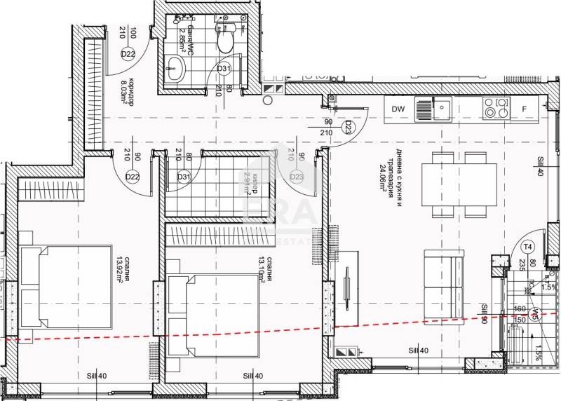
Само в ЕРА Лайф! Обявеният за продажба имот с площ - 77,19 кв.м. (застроена площ 88,85 кв.м.) , е разположен на десети етаж в новопостроена жилищна сграда на Етап Акт 14. Имотът е със следното разпределение: коридор - 8,03 кв.м, дневен тракт с открит кухненски бокс - 24,06 кв.м. с излаз на балкон, две спални - 13,10 и 13,92 кв.м., килер - 2,91 кв.м, комбиниран санитарен възел - 2,85 кв.м. Имотът е със статут на апартамент.
Изложение: запад/север. Вид на завършеност на жилището: БДС стандарт, стени - мазилки, шпакловка и грунд, тавани - мазилка, шпакловка и грунд, входна врата с метален обков, пет камерна PVC дограма, ел. инсталации - контакти и фасунги, ВиК на тапи. Отоплението е на ток. Паркирането е свободно в района. Жилището се продава без обзавеждане.
Обявеният ексклузивен апартамент е в сграда, която ще бъде въведена в експлоатация април 2026г. В строителството на сградата са използвани качествени материали. Модерна архитектура и съвременна визия.
Жилището се намира в район с добра инфраструктура - в близост до главни пътни артерии, автобусни спирки на градския транспорт, магазини, голям търговски център, професионални гимназии и училища, детски градини и ясли. Имотът е отличен както за живеене, така и за инвестиция. Код: 0708136
ЕРА е лицензиран КРЕДИТЕН ПОСРЕДНИК и предлага БЕЗПЛАТНА консултация на своите клиенти!
Всеки имот предлаган от ЕРА е проверен, посетен на място и заснет от наш консултант.
Оферта 0708136







