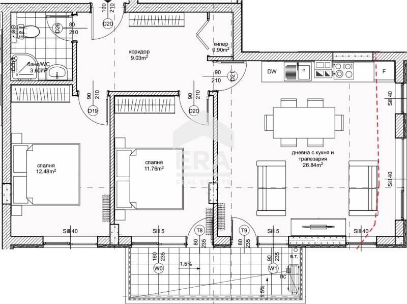
ЕЛА Лайф обявява за продажба апартамент с площ - 95,57 кв.м. (застроена площ 82,7 кв.м.) , разположен на четвърти етаж в новопостроена жилищна сграда. Имотът е със следното разпределение: коридор - 9,03 кв.м, дневен тракт с открит кухненски бокс - 26,84 кв.м., две спални - 11,76 кв.м. и 12,48 кв.м., с излаз на балкон от дневната и по-малката спалня, килер - 0,90 кв.м, комбиниран санитарен възел - 3,60 кв.м. Имотът е със статут на апартамент.
Изложение: изток. Вид на завършеност на жилището: БДС стандарт, стени - мазилки, шпакловка и грунд, тавани - мазилка, шпакловка и грунд, входна врата с метален обков, пет камерна PVC дограма, ел. инсталации - контакти и фасунги, ВиК на тапи. Отоплението е на ток. Паркирането е свободно в района. Жилището се продава без обзавеждане.
Обявеният апартамент е в сграда, която ще бъде въведена в експлоатация август 2025г. В строителството на сградата са използвани качествени материали. Модерна архитектура и съвременна визия.
Жилището се намира в район с добра инфраструктура - в близост до главни пътни артерии, автобусни спирки на градския транспорт, магазини, голям търговски център, професионални гимназии и училища, детски градини и ясли. Имотът е отличен както за живеене, така и за инвестиция. Код: 0708261
ЕРА е лицензиран КРЕДИТЕН ПОСРЕДНИК и предлага БЕЗПЛАТНА консултация на своите клиенти!
Всеки имот предлаган от ЕРА е проверен, посетен на място и заснет от наш консултант.
Оферта 0708261







