Оферта 60383 - Специално предложение - Новоизграждаща се малка, бутикова сграда в най-зеления район на града.
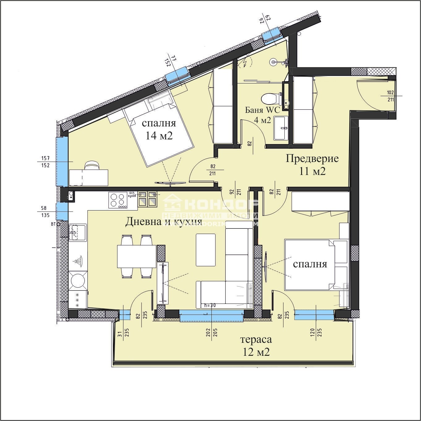
Разпределение - Предлагаме на Вашето внимание тристаен апартамент, състоящ се от просторна Южна дневна с трапезария и кухненски бокс, голяма спалня - 14 м. кв.м. и втора по малка, голяма тераса - 12 кв.м., баня с тоалетна, обособено широко входно антре.
Материали - Жилищната сграда се изражда съгласно най-високите технологични изисквания за качество и лукс. Използваните материали са съобразени с най-новите тенденции в строителството - модерна външна облицовка, висококачествена покривна и фасадна изолация, PVC пет камерна дограма и др. Функционалните общи части, допринасят допълнително за усещането за лукс и комфорт на обитателите.
Локация - Ситуирана в най-зеления и дишащ квартал на града, с училища, детски градини и търговски обекти наблизо, прави сградата подходяща както за живот, така и за инвестиция. Допълнителни екстри - За удобство на своите собственици, сградата разполага с опция за закупуване на паркоместа и избени помещения.
Начин на плащане - Възможност за разсрочено плащане в рамките на строителството. Възможност за банково финансиране. Фиксирана цена до Акт 16!
Свободни гаражи и паркоместа! Приложените снимки са от вече готова сграда на строителната фирма.







