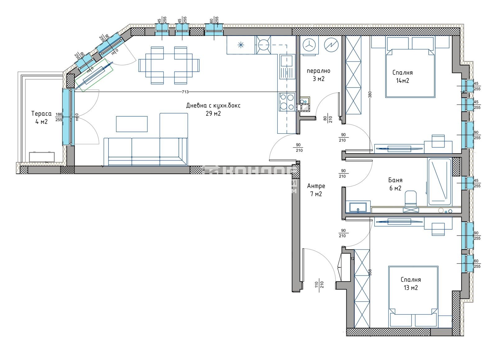
Оферта 64217: ЕКСКЛУЗИВНА НОВА СГРАДА, САМО ОТ КОНДОР ! Представяме ви нискоетажен модерен комплекс в индустриален стил в тих и спокоен район заобиколен от зеленина. Проектът предвижда големи и светли помещения с правилни форми, комфортни за обитаване и обзавеждане. Жилището, което ви предлагаме се състои от ЪГЛОВА дневна с кухненски бокс- 29 кв.м с ФРЕНСКИ ПРОЗОРЦИ, две спални 14 и 13 кв.м, коридор, ГОЛЯМА баня с тоалетна С ПРОЗОРЕЦ- 6 кв.м, перално помещение и тераса към дневната. Комплексът е от затворен тип с бариери, но БЕЗ ТАКСИ за поддръжка, с видеонаблюдение. Високо качество на изпълнение на обекта: външна топлоизолация 12см, шумоизолация на външните стени, шумо и топлоизолация на междуетажните плочи, многокамерна ПВЦ дограма с двоен стъклопакет, асансьор с топла връзка до подземието, станции за електромобили, кабелни трасета- SMART House и 2200 кв.м ОЗЕЛЕНЕН ДВОР! Избор на надземни и подземни гаражи и паркоместа! Гъвкъви схеми на плащане спрямо клиента, съдействие от банки партньори на агенцията за кредит!
ВИЖТЕ ОЩЕ ИЗГОДНИ ОФЕРТИ НА https://www.kondorimoti.com/ С ЕЖЕДНЕВНА АКТУАЛИЗАЦИЯ!







