Агенция за недвижими имоти ХОУМ ФОР Ю има голямото удоволствие да ви представи за продажба тристаен апартамент в новопостроена, луксозна сграда в жк. Еленово, гр. Благоевград.
Сградата се състои от: модерен безшумен асансьор, сутерен с гаражи и мазета, партерен етаж с търговски помещения и пет жилищни етажа.
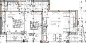
Вашият нов ДОМ се намира на КОТА + 8,40 на трети жилищен етаж с изцяло южно изложение, което го прави много слънчев, светъл, топъл и уютен!
Застроената му площ е 95,67 кв.м. + 14,99 кв.м. общи части, което се равнява на 110,66 кв.м. обща площ, ведно с мазе с площ 3,68 кв.м.
Със следното вътрешно разпределение на стаите и тяхната полезна (светла) площ:
- входно антре с площ 8,70 кв.м.
- баня с тоалетна с площ 4,96 кв.м.
- спалня с площ 15,32 кв.м.
- балкон с площ 4,69 кв.м.
- спалня с площ 15,59 кв.м.
- дневна с кухненски бокс и трапезария с площ 28,62 кв.м.
- балкон с площ 7,20 кв.м.
Жилището ще бъде завършено по БДС и ще се предаде в следния завършен вид:
- тухли Wienerberger Porotherm 25 light
- PVC дограма Rehau Synego 6 камерна 80мм. с висок клас обков на Maco с 4 точки на притискане с високоенергиен троен стъклопакет: К-а стъкло + Б + четири сезона 42мм.
- общи части с гранит и иноксови парапети
- стени и тавани: фина гипсова мазилка
- изводи за климатици във всяка стая
- стъклени парапети на терасите
- блиндирана входна врата
- под: циментова замазка
- ел. до точка
- ВиК до тапа
За ваша сигурност, спокойствие и удобство за новия Ви ДОМ, предлагаме да закупите гараж със застроена площ 36,58 кв.м. + 4,37 кв.м. общи части, което се равнява на 40,95 кв.м. обща площ на цена от 30 000 евро, за да не се налага всеки ден да обикаляте и да търсите място на което да паркирате автомобила си.
ГЪВКАВА СХЕМА НА ПЛАЩАНЕ:
- 60 % - ПЪРВОНАЧАЛНА ВНОСКА
- 30 % - на АКТ 15
- 10 % - на АКТ 16
ЕТАП НА СТРОИТЕЛСТВОТО: АКТ 14!!!
АКТ 14 (това е документът за приемане на конструкцията на сградата, който се издава, когато сградата достигне етап груб строеж)
АКТ 15 (това е документът, с който се констатира, че сградата е напълно завършена)
АКТ 16 - до края на 2026г. (това е документа, с който сградата се въвежда в експлоатация или по просто казано годна за живеене )
Жилището очаква своите нови собственици, които ще го стопанисват и превърнат в техен дом!
За да получите повече информация за предлаганата от нас оферта може да ни се обадете на посочените телефони за връзка!
Екипът от професионалисти на ХОУМ ФОР Ю ще Ви помогне да сбъднете мечтите си и да ги превърне в реалност, като ви съдейства НАПЪЛНО БЕЗПЛАТНО при кандидатстването за жилищен кредит с ПРЕФЕРЕНЦИАЛНИ УСЛОВИЯ от най-големия кредитен консултант в България КРЕДИТ ЦЕНТЪР!
Ако предлаганият апартамент ви е харесал и представлява интерес за вас, не се колебайте да се свържете с наш брокер, за да резервирате час за оглед в удобно за вас време!
Заповядайте в нашият офис на бул. Кирил и Методий 2 за безплатна консултация с нашите професионалисти, които ще ви обърнат специално внимание, като ви запознаят с пазара на недвижими имоти и ви помогнат с избора на ново жилище според вашите изисквания!
Новият Ви ДОМ е точно тук!
Защото с нас мечтите стават реалност!
РЕФЕРЕНТЕН 7847



