Агенция за недвижими имоти ХОУМ ФОР Ю има голямото удоволствие да ви представи за продажба тристаен апартамент 4 в новострояща се, луксозна сграда в жк. Еленово, гр. Благоевград.
Сградата се състои от: модерен безшумен асансьор, сутерени с паркоместа и мазета, партерен етаж с гаражи и четири жилищни етажа с общо 13 апартамента;
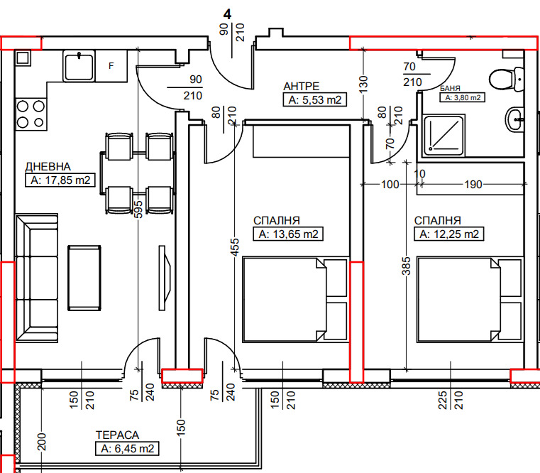
Вашият нов ДОМ се намира на КОТА + 2,80 на първи жилищен етаж с изцяло южно изложение, което го прави много слънчев, светъл, топъл и уютен!
Застроената му площ е 69,70 кв.м. + 8,00 кв.м. общи части, което се равнява на 77,70 кв.м. обща площ.
Със следното вътрешно разпределение на стаите и тяхната полезна (светла) площ:
- входно антре с площ 5,53 кв.м.
- дневна с трапезария с площ 17,85 кв.м.
- спалня с площ 13,65 кв.м.
- тераса с площ 6,45 кв.м.
- спалня с площ 12,25 кв.м.
- баня с тоалетна с площ 3,80 кв.м.
Жилището ще бъде завършено по БДС и ще се предаде в следния завършен вид:
- Зидария с Wienerberger-Porotherm 25 light ;
- 6 камерна PVC дограма с високоенергиен троен стъклопакет 4 сезона и К-а стъкло за запазване на температурата в помещенията;
- Топлоизолационна система BAUMIT PRO EPS (експандиpан полистирен) 10 см. с коефициент 0,031 W/mK;
- Фасада - комбинация от метал и силикатна мазилка BAUMIT ;
- Луксозен хидравличен асансьор;
- Луксозни общи части с гранит и иноксови парапети, скрито осветление, декоративни елементи и панели;
- Стени и тавани: машинна фина гипсова мазилка;
- Луксозни входни врати: блиндирани с многоточково заключване и касова брава;
- Изводи за климатици във всяка стая;
- Под: циментова замазка;
- Ел. до точка;
- ВиК до тапа;
- Домофони и видеонаблюдение;
- Покрив по архитектурен детайл - XPS 10 см и замазка за наклон; два пласта хидроизолация 4 мм;
За ваша сигурност, спокойствие и удобство за новия Ви ДОМ, предлагаме да закупите гараж на цена от 600 на кв.м., за да не се налага всеки ден да обикаляте и да търсите място на което да паркирате автомобила си.
ГЪВКАВА СХЕМА НА ПЛАЩАНЕ:
50 % - първоначална вноска
45 % - на АКТ 14
5 % - на АКТ 16
ЕТАП НА СТРОИТЕЛСТВОТО: В СТРОЕЖ!!!
АКТ 14 - до края на 2025г. (това е документът за приемане на конструкцията на сградата, който се издава, когато сградата достигне етап груб строеж)
АКТ 15 - до края на 2026г. (това е документът, с който се констатира, че сградата е напълно завършена)
АКТ 16 - до края на април 2027г. (това е документа, с който сградата се въвежда в експлоатация или по просто казано годна за живеене )
Жилището очаква своите нови собственици, които ще го стопанисват и превърнат в техен дом!
За да получите повече информация за предлаганата от нас оферта може да ни се обадете на посочените телефони за връзка!
Екипът от професионалисти на ХОУМ ФОР Ю ще Ви помогне да сбъднете мечтите си и да ги превърне в реалност, като ви съдейства НАПЪЛНО БЕЗПЛАТНО при кандидатстването за жилищен кредит с ПРЕФЕРЕНЦИАЛНИ УСЛОВИЯ от най-големия кредитен консултант в България КРЕДИТ ЦЕНТЪР!
Ако предлаганият апартамент ви е харесал и представлява интерес за вас, не се колебайте да се свържете с наш брокер, за да резервирате час за оглед в удобно за вас време!
Заповядайте в нашият офис на бул. Кирил и Методий 2 за безплатна консултация с нашите професионалисти, които ще ви обърнат специално внимание, като ви запознаят с пазара на недвижими имоти и ви помогнат с избора на ново жилище според вашите изисквания!
Новият Ви ДОМ е точно тук!
Защото с нас мечтите стават реалност!
РЕФЕРЕНТЕН 7347







