Агенция за недвижими имоти ХОУМ ФОР Ю има голямото удоволствие да ви представи за продажба тристаен апартамент 16 в новострояща се, луксозна сграда в жк. Еленово, гр. Благоевград.
Сградата се състои от: модерен безшумен асансьор, сутерен с паркоместа, гаражи и мазета, партерен етаж с гаражи и мазета пет жилищни етажа с общо 21 апартамента;
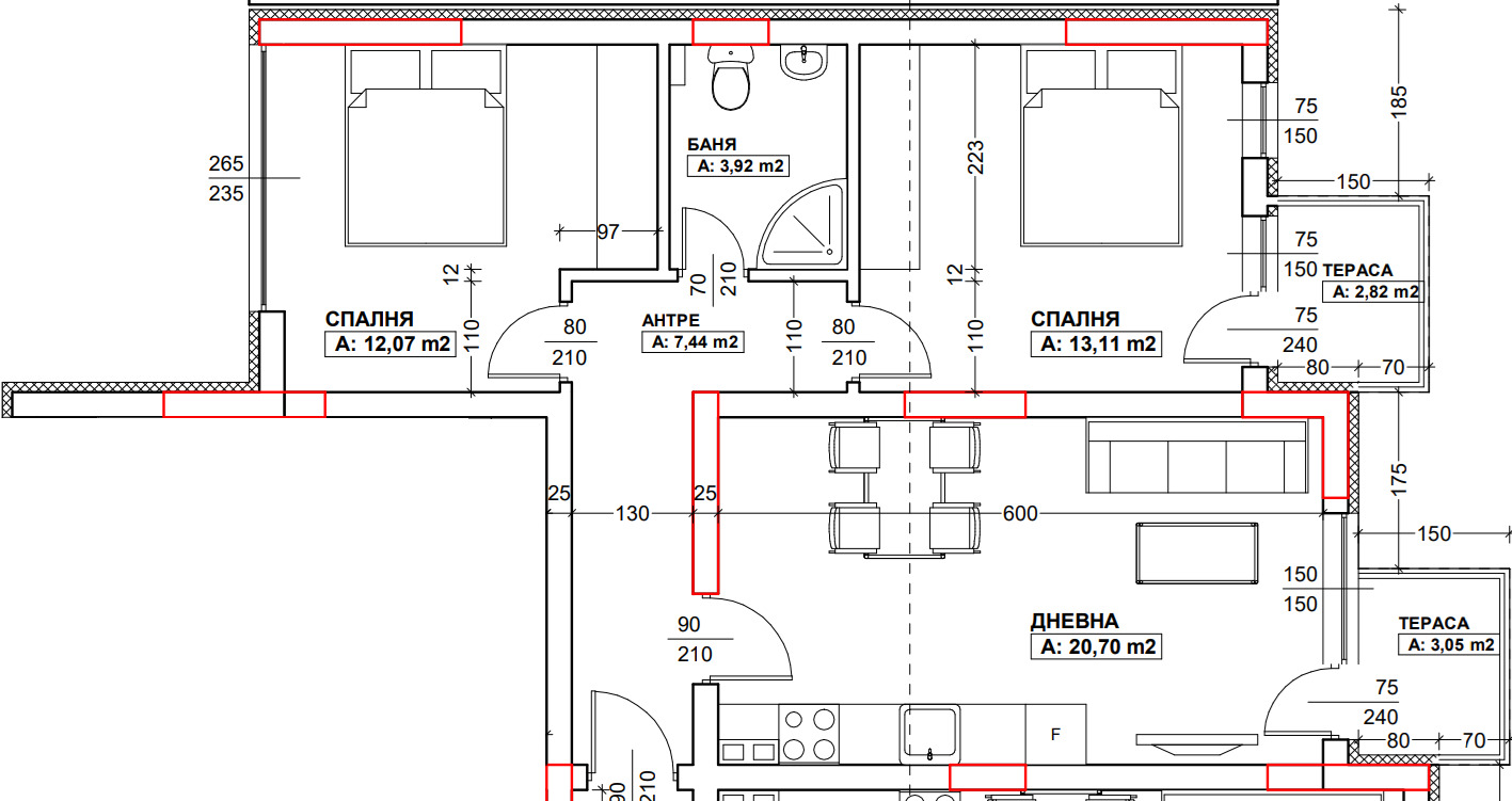
Вашият нов ДОМ се намира на КОТА + 11,00 на четвърти жилищен етаж със северо-източно изложение.
Застроената му площ е 75,41 кв.м. + 9,08 кв.м. общи части, което се равнява на 84,49 кв.м. обща площ, ведно с 26,61 кв.м. от поземления имот.
Със следното вътрешно разпределение на стаите и тяхната полезна (светла) площ:
- входно антре с площ 7,44 кв.м.
- дневна с трапезария с площ 20,70 кв.м.
- тераса с площ 3,05 кв.м.
- спалня с площ 12,07 кв.м.
- баня с тоалетна с площ 3,92 кв.м.
- спалня с площ 13,11 кв.м.
- тераса с площ 2,82 кв.м.
Жилището ще бъде завършено по БДС и ще се предаде в следния завършен вид:
- Зидария с Wienerberger-Porotherm 25 light ;
- PVC дограма Rehau Synego 6 камерна 80мм. с висок клас обков на Maco с 4 точки на притискане с високоенергиен троен стъклопакет: К-а стъкло + Б + четири сезона 42мм.
- Топлоизолационна система Weber EPS (експандиpан полистирен) 10 см. и силикатна мазилка;
- Луксозен асансьор ORONA ;
- Луксозни общи части с гранит;
- Стени: машинна фина гипсова мазилка;
- Тавани: гипсокартон с вата и фина шпакловка;
- Опушени стъклени парапети на терасите;
- Луксозни входни врати: блиндирани с многоточково заключване;
- Изводи за климатици във всяка стая;
- Под: циментова замазка;
- Ел. до точка;
- ВиК до тапа;
- Покрив по архитектурен детайл - XPS 10 см и замазка за наклон; два пласта хидроизолация 4 мм;
За ваша сигурност, спокойствие и удобство за новия Ви ДОМ, предлагаме да закупите гараж на цена от 22 000 евро, за да не се налага всеки ден да обикаляте и да търсите място на което да паркирате автомобила си.
ГЪВКАВА СХЕМА НА ПЛАЩАНЕ:
40 % - първоначална вноска
40 % - на АКТ 14
20 % - на АКТ 16
ЕТАП НА СТРОИТЕЛСТВОТО: В СТРОЕЖ!!!
АКТ 14 - до края на 2025г. (това е документът за приемане на конструкцията на сградата, който се издава, когато сградата достигне етап груб строеж)
АКТ 15 - до края на август 2026г. (това е документът, с който се констатира, че сградата е напълно завършена)
АКТ 16 - до края на 2026г. (това е документа, с който сградата се въвежда в експлоатация или по просто казано годна за живеене )
Жилището очаква своите нови собственици, които ще го стопанисват и превърнат в техен дом!
За да получите повече информация за предлаганата от нас оферта може да ни се обадете на посочените телефони за връзка!
Екипът от професионалисти на ХОУМ ФОР Ю ще Ви помогне да сбъднете мечтите си и да ги превърне в реалност, като ви съдейства НАПЪЛНО БЕЗПЛАТНО при кандидатстването за жилищен кредит с ПРЕФЕРЕНЦИАЛНИ УСЛОВИЯ от най-големия кредитен консултант в България КРЕДИТ ЦЕНТЪР!
Ако предлаганият апартамент ви е харесал и представлява интерес за вас, не се колебайте да се свържете с наш брокер, за да резервирате час за оглед в удобно за вас време!
Заповядайте в нашият офис на бул. Кирил и Методий 2 за безплатна консултация с нашите професионалисти, които ще ви обърнат специално внимание, като ви запознаят с пазара на недвижими имоти и ви помогнат с избора на ново жилище според вашите изисквания!
Новият Ви ДОМ е точно тук!
Защото с нас мечтите стават реалност!
РЕФЕРЕНТЕН 7593
Виж всички обяви в home4u-bg.bazar.bg или тук







