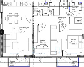
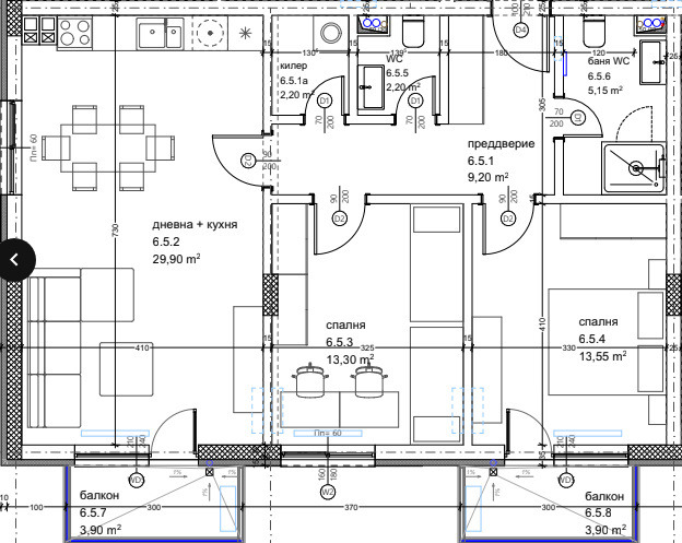
ЕРА Вива продава тристаен апартамент в новострояща се сграда в кв. Кайсиева Градина, гр. Варна. Имотът е със застроена площ от 95.30 кв.м. /114.09 кв.м. с общите части/ и е разположен на пети от общо дванадесет етажа. Състои се от входно антре /9.2 кв.м./, просторна и слънчева дневна с кухня и трапезария /30 кв.м./, две големи спални /13 и 13.5 кв.м./, две бани с тоалетни /5.15 и 2.2 кв.м./ и два балкона /всеки по 3.9 кв.м./. Жилището ще бъде издадено по БДС - на шпакловка и замазка, с поставена ПВЦ дограма и блиндирана входна врата.
Нова и модерна сграда с качествено изпълнение и съвременна фасада. REHAU дограма с троен стъклопакет, асансьори Schindler, стилни общи части с гранит и стъклени парапети. Възможност за закупуване на външно или подземно паркомясто. Предлагат се двустайни и тристайни апартаменти с възможност за обединение.
Отлична локация. Район с много добре изградена инфраструктура. На 200 м от магазин Алати и бул. 3-ти март . В близост до множество главни пътни артерии и спирки на градския транспорт.
---
ЕРА Вива продава тристаен апартамент в новострояща се сграда в кв. Кайсиева Градина, гр. Варна







