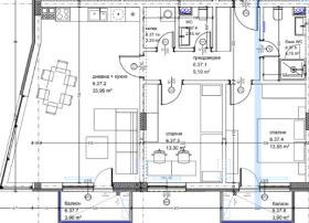
ЕРА Вива продава тристаен апартамент в новострояща се сграда в кв. Кайсиева Градина, гр. Варна. Имотът е със застроена площ от 99.75 кв.м. /119.42 кв.м. с общите части/ и е разположен на десети от общо дванадесет етажа. Състои се от входно антре /9.1 кв.м./, просторна и слънчева дневна с кухня и трапезария /34 кв.м./, две спални /13.3 и 13.5 кв.м./, баня с тоалетна /5.15 кв.м./, килер /2.2 кв.м./, отделна тоалетна /2.15 кв.м./ и два балкона /3.9 кв.м./. Жилището ще бъде издадено по БДС - на шпакловка и замазка, с поставена ПВЦ дограма и блиндирана входна врата. Нова и модерна сграда с качествено изпълнение и съвременна фасада. REHAU дограма с троен стъклопакет, асансьори Schindler, стилни общи части с гранит и стъклени парапети. Възможност за закупуване на външно или подземно паркомясто. Предлагат се двустайни и тристайни апартаменти с възможност за обединение. Отлична локация. Район с много добре изградена инфраструктура. На 200 м от магазин Алати и бул. 3-ти март . В близост до множество главни пътни артерии и спирки на градския транспорт.







