Имоти Премиер Ви представя тристаен апартамент в новострояща се сграда, разположена в един от най-предпочитаните и бързоразвиващи се райони на Варна в близост до КАТ, на границата на кв. Младост. Районът предлага отлична инфраструктура, удобен достъп до главни пътни артерии, магазини, детски градини и училища.
Апартаментът е разположен на 11-ти етаж от 11, с обща площ от 112,50 м² и югоизточно изложение, което осигурява светлина и уют през целия ден.
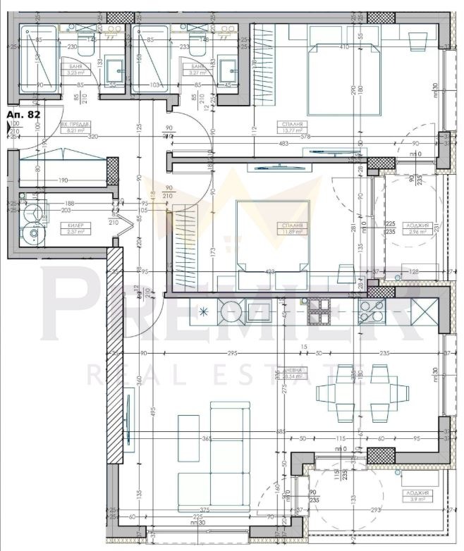
Разпределение:
-Входно преддверие 8,20 м²
-Просторна дневна с кухненски бокс 29 м²
-Спалня 11,89 м²
-Втора спалня 13,77 м²
-Баня с тоалетна 3,23 м²
-Втора баня с тоалетна 3,23 м²
-Килер 2,37 м²
-Две лоджи 2,96 м² / 3,9 м²
Допълнителна информация:
✅ Възможност за гъвкави схеми на плащане
✅ Опция за закупуване на паркомясто
Ние от Имоти Премиер ще Ви съдействаме през целия процес от избора на имота до финализиране на сделката! При желание съдействаме и за банково кредитиране при най-добри условия.
📞 За повече информация и огледи: Код на имот 379848







