Имоти Премиер представя на Вашето внимание функционален тристаен апартамент в района на Младост.
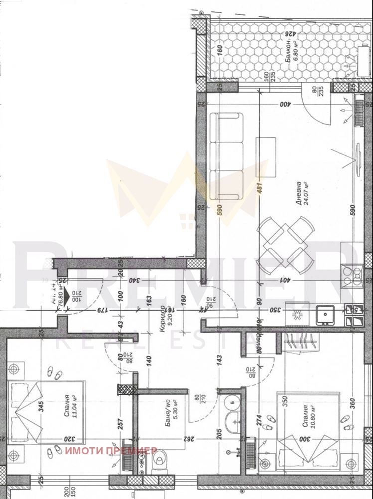
Жилището има следното разпределение: голям коридор, всекидневна с правилна форма, която позволява да бъде функционално разпределена, две спални, баня и тоалет в едно помещение и просторна тераса с панорамна гледка към града и Варненското езеро.
Разположено е в нова тухлена сграда с асансьор, в близост до Делта мол.
Възможност да се закупи и външно паркомясто.
За повече информация и оглед се обадете и цитирайте код: 376373.







