Схема на плащане 20% сега, 80% след взет Акт 16.
Хоум Хил предлага за продажба просторен тристаен апартамент на границата на ж.к. Люлин 3 и 4, разположен в нова тухлена сграда с окачена фасада, модерни общи части и висок клас строителство.
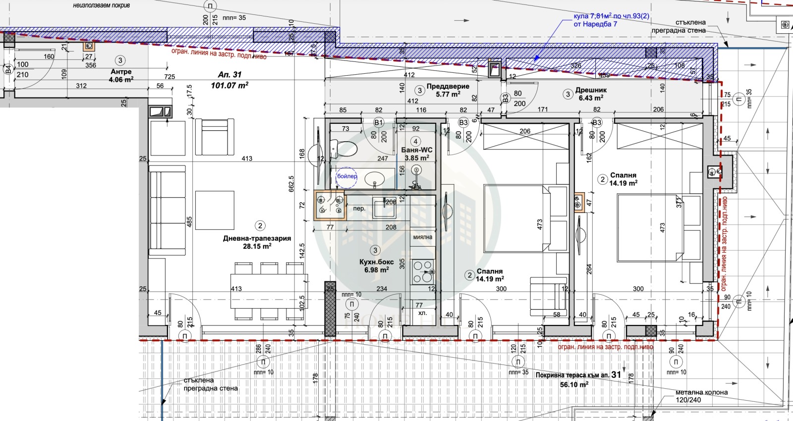
Имотът е с чиста застроена площ от 101.70 кв.м и обща площ от 117.65 кв.м (изключително нисък процент общи части). Жилището се намира на 6-ти етаж от общо 6 и идва с подарък 56кв.м тераса. Апартаментът се състои от голяма дневна, отделен кухненски бокс, две спални по 15кв.м, дрешник и баня с тоалетна.
Има възможност за покупка на паркомясто.
Изложението на имота е предимно югоизток, което осигурява отлична естествена светлина и топлина през целия ден. Отоплението е на електричество.
Сградата е с входирани документи за Акт 15, като Акт 16 се очаква до няколко месеца.
Локация с бърз достъп до градски транспорт, магазини, училища и бъдеща метростанция.







