Homehill предлага за продажба тристаен апартамент в новострояща се жилищна сграда в ж.к. Люлин - Център. Сграда на 5 етажа с модерна визия, функционални жилища и отлична локация на пешеходно разстояние от метро, училища, детски градини, супер маркети и още много други ключови удобства.
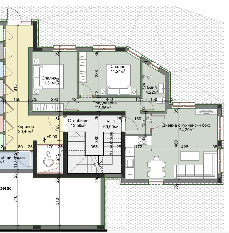
Апартаментът е локализиран е на партер и със застроена площ от 69,00 кв.м и 81,66 кв.м с общите части.
Състои от: предверие, дневна с кухненски бокс, две спални, една баня с тоалетна и балкон. Към апартамента има включени двор и паркомясто в цената.
Отоплението е предвидено на Ток.
Изложение: югоизток
В сградата имя и други свободни паркоместа на цена от 24000 евро
За повече информация и огледи се свържете с нас на посочения телефон.







