В тиха и предпочитана част на кв. Манастирски ливади Изток, в близост до ул. Флора, се изгражда бутикова жилищна сграда с най-висок клас изпълнение, включваща само 15 просторни жилища.
Проектът се отличава с високи тавани (2,80 м), отлично разпределени помещения и модерни инженерни решения, създаващи усещане за дом от по-висок клас.
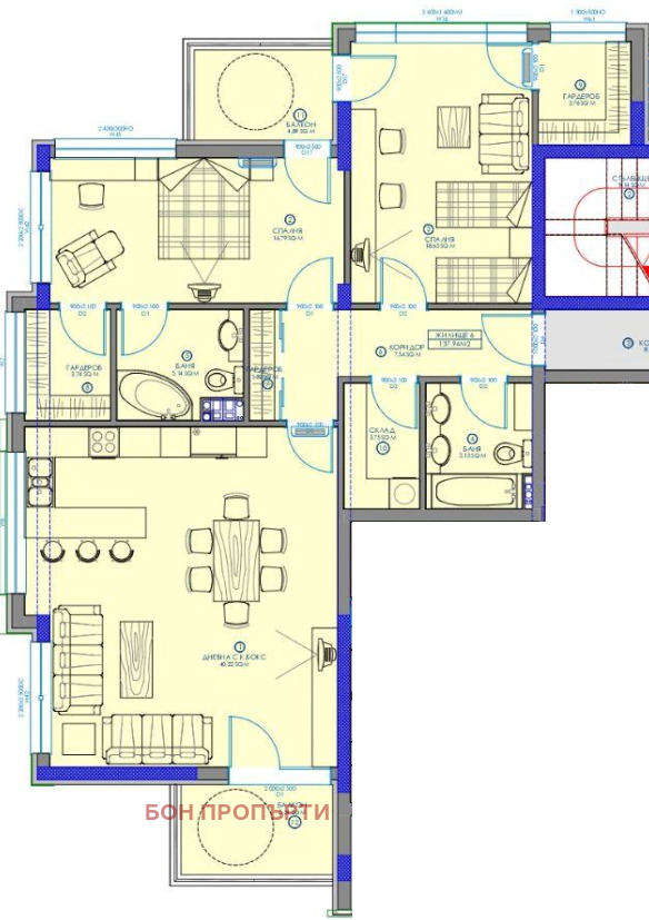
Апартамент 10, разположен на етаж 3, разполага с:
ЗП: 138 кв.м
РЗП: 158 кв.м
Цена: 341 250 евро без ДДС
Разпределение:
Коридор, просторна всекидневна с кухненски бокс (40,22 кв.м), две спални с гардеробни, две бани с тоалетна, склад и два балкона.
Изложение: Северозапад / Запад / Юг
Апартаментът е част от сграда с най-висок клас дограма Reynaers Aluminium, шумоизолация, отопление с термопомпа и подово отопление, както и климатизация за летните месеци, осигуряващи отличен комфорт през цялата година.
Има възможност за покупка на мазета, разположени на ниво -1, с РЗП от 8 до 13 кв.м и цени от 8 250 до 14 541 евро без ДДС, както и гаражи на ниво -1 с РЗП от 41 до 53 кв.м, на цени от 44 250 до 57 083 евро без ДДС.
В сградата са налични и други тристайни и четиристайни апартаменти.



