В тихата и предпочитана част на кв. Манастирски ливади Изток на ул. Флора, се изгражда бутикова жилищна сграда с едва 15 апартамента, проектирана за хора, които търсят пространство, качество и усещане за дом.
Сградата е с шест надземни и един подземен етаж, с височина на таваните 2,80 м, просторни помещения и функционални разпределения, които създават усещане за живот в къща.
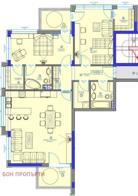
Апартамент 6 е разположен на етаж 2 и предлага:
ЗП: 138 кв.м
РЗП: 158 кв.м
Цена: 329 000 евро без ДДС
Разпределение:
Коридор, голяма всекидневна с кухненски бокс с площ 40,22 кв.м, две спални с обособени гардеробни към тях, две бани с тоалетна, склад и два балкона.
Изложение: Североизток / Северозапад / Юг
Апартаментът е част от сграда с най-висок клас дограма Reynaers Aluminium, шумоизолация, отопление с термопомпа и подово отопление, както и климатизация за летните месеци, осигуряващи отличен комфорт през цялата година.
Има възможност за покупка на мазета, разположени на ниво -1, с РЗП от 8 до 13 кв.м и цени от 8 250 до 14 541 евро без ДДС, както и гаражи на ниво -1 с РЗП от 41 до 53 кв.м, на цени от 44 250 до 57 083 евро без ДДС.
В сградата са налични и други тристайни и четиристайни апартаменти.







