Референтен номер: PLV-117006
Представяме нов, тристаен апартамент в модерeн комплекс, в кв. 'Кършияка' на град Пловдив. Удобна локация в непосредствена близост до главен булевард, Околовръстен път, автобусни спирки, хранителни магазини, училища, университет и болница. Зоната разполага със спортен комплекс в близост и велоалеи.
БЕЗ КОМИСИОНА!
Комплексът е в процес на строеж, а Акт 16 се очаква до края на 2026г.
Състои се две секции, всяка от които с 6 етажа и предлага едностайни, двустайни и тристайни жилища, а на партерно ниво има кафене, ресторант и офис пространство. Разполага и с паркинг и зелени площи, като е предвидено озеленяване под формата на тревиста растителност с разнообразни растителни видове.
Това е иновативен проект, съчетаващ в себе си функционалност, комфорт и безкомпромисно качество на строителството. Разпределенията на апартаментите са изключително функционални, което ги прави лесни за обзавеждане, а бонус към тях е прекрасната гледка към Родопите. Концепцията на проекта е вдъхновена от стремежа за създаване на приятна и балансирана архитектура, която да се впише безупречно в цялостната визия на квартала. Мисията е да се осигури комфорт и спокойствие на бъдещите собственици.
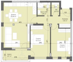
Имотът с обща площ 110.29 кв.м е разположен на 4-и етаж от 6, с изложение юг/запад.
Състои се от:
всекидневна с трапезария и кухненски бокс - 29.44 кв.м;
две спални - 13.73 кв.м и 12.70 кв.м;
антре - 7.81 кв.м;
баня с тоалетна - 3.90 кв.м;
тоалетна - 2.23 кв.м;
тераса - 5.67 кв.м;
изба - 5.81 кв.м.
Жилището се предава в степен на завършеност по БДС:
блиндирана входна врата;
стени и тавани - гипсова мазилка;
под - циментова замазка;
ел. инсталация до ключ и контакт;
ВиК - тръбни разводки на тапа;
PVC дограма, стъклопакет с четирисезонно стъкло;
напълно завършени тераси;
асансьор;
луксозни общи части;
контролиран ...
За повече информация свържете се с нас и цитирайте референтния номер на имота. Моля, кажете, че сте видeли обявата в този сайт.
Референтен номер: PLV-117006
Тел: +359 889 007 010
Моб: +359 877 777 888 (WhatsApp, Viber, SMS)
Отговорен брокер:Стоунхард ПРЕМИЪР
Без комисиона от купувача







