Референтен номер: PLV-126082
Представяме тристаен апартамент в нов комплекс, в кв. 'Кършияка' на град Пловдив. Отлична локация в близост до река Марица, Гребния канал, УМБАЛ Пловдив - Университетска Многопрофилна болница, Пловдивския университет, езиковите гимназии, магазин Алати и комплекс Марица Гардънс.
БЕЗ КОМИСИОНА!
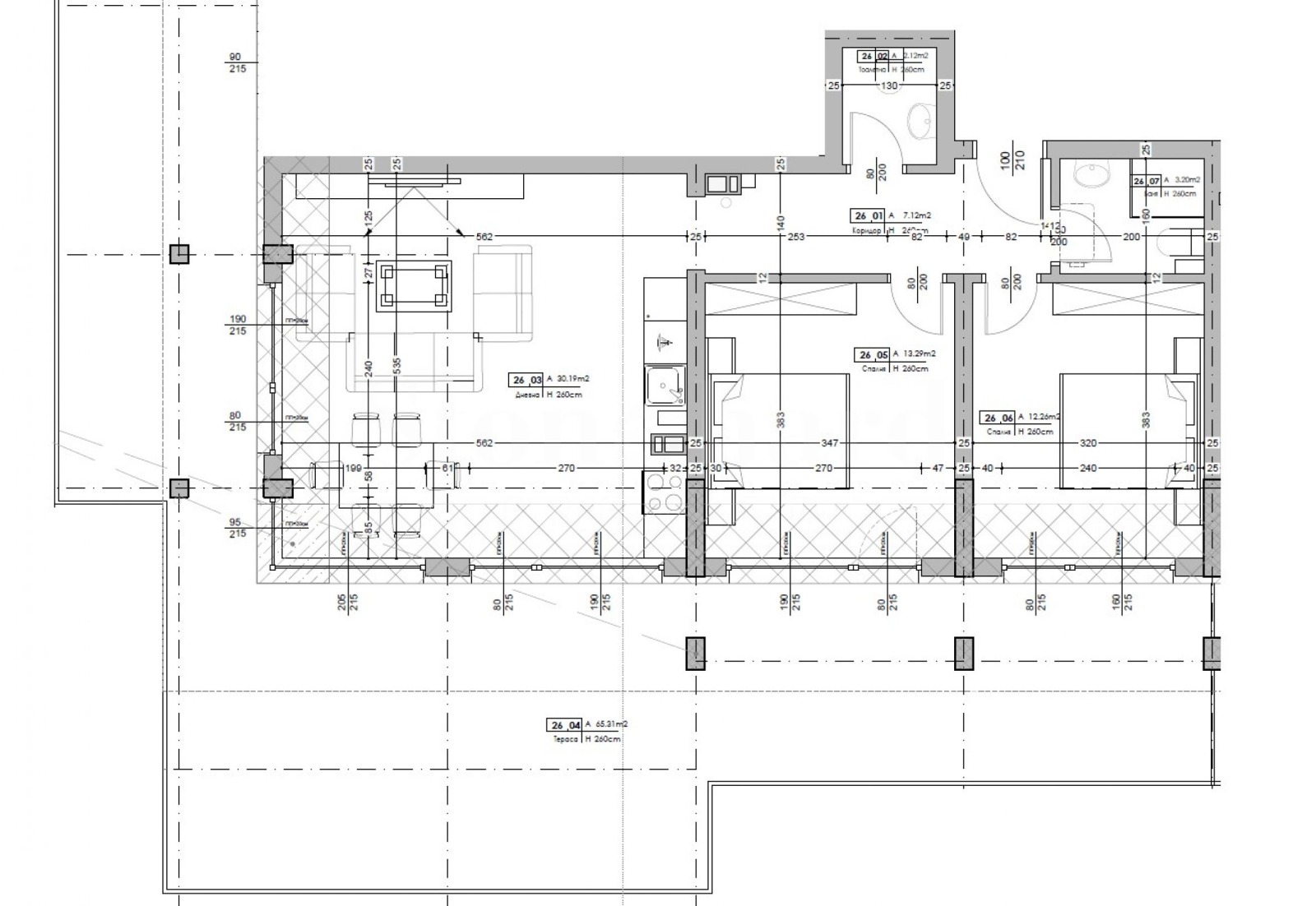
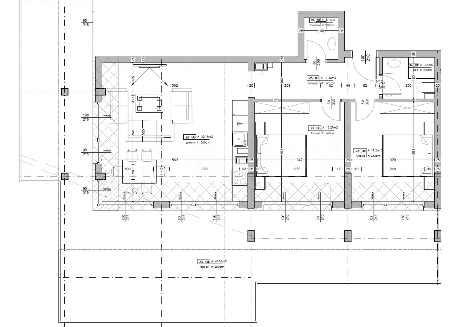
Имотът с обща площ от 171.57 кв.м е разположен на 5-и етаж от 5.
Комплексът е с Акт 14, а Акт 16 е предвиден до август 2027 г.
Проектът се състои от 2 сгради и четири жилищни секции - нискоетажно застрояване с кота корниз 10 м. Жилищните секции са типизирани - огледални и повтаряеми. Предлага двустайни, тристайни, четиристайни апартаменти, гаражни клетки и паркоместа, реализирани изцяло в подземен гараж, паркова среда с два детски къта - 5500 кв.м, фитнес на открито и водно огледало.
Жилищата се предават в степен на завършеност по БДС:
висококачествена 7-камерна дограма с троен стъклопакет;
подготовка за smart home решения в жилищата;
подготовка за подово отопление с възможност за термопомпена инсталация;
шумоизилация по подовете.Допълнителни удобства, които предвиждат проектите:
фотоволтаична инсталация на покривите - за обезпечаване на общата консумация - общи части, парково осветление и др;
24 h видеонаблюдение;
зарядни станции за ЕПС - 22 kw;
централна инсталация за филтриране и декалциране на питейната вода;
инсталация за използване на дъждовните води за поливни нужди с резервоар.Стандартна схема на плащане:
предварителен договор - 30%;
Акт 14 - 50%;
Акт 15 - 20%.За повече информация, моля свържете се с отговорния брокер по офертата.
За повече информация свържете се с нас и цитирайте референтния номер на имота. Моля, кажете, че сте видeли обявата в този сайт.
Референтен номер: PLV-126082
Тел: +359 889 007 010
Моб: +359 877 777 888 (WhatsApp, Viber, SMS)
Отговорен брокер:Стоунхард ПРЕМИЪР
Без комисиона от купувача







