Модерна жилищна сграда в Овча Купел 2, част от мащабен комплекс с обща визия и инфраструктура, от инвеститор с доказано качество на строителство и солидна репутация на пазара. Стилен дизайн и функционални разпределения, разположен в предпочитан район с удобна градска инфраструктура.
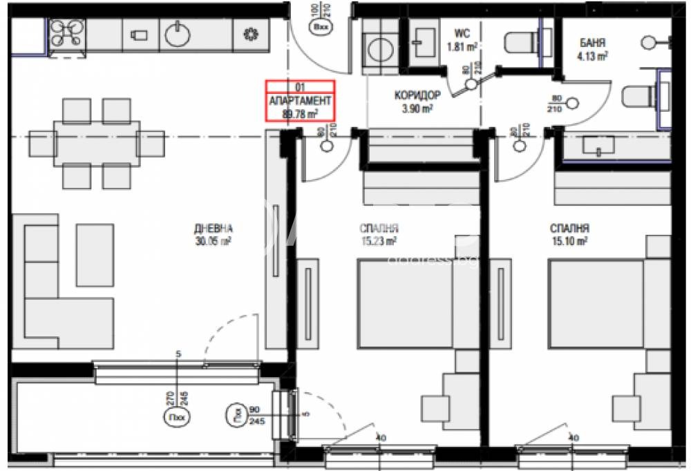
Просторен тристаен апартамент, с южно изложение, състоящ се от:
входно антре, дневна с трапезария и кухненски
бокс, две спални, тераса, баня с тоалетна и
отделна тоалетна.
Сградата се намира на кратко пешеходно разстояние от НБУ и метростанция 'Мизия'.
Сграда от 3 входа, на 9 етажа. Богат избор от жилища с една или две спални. Възможност за обединение. Отопление на газ. Към всеки апартамент има прилежащо мазе или склад. Контролиран достъп, асансьор и висок клас дограма.
Обади се сега и цитирай този код 680895







