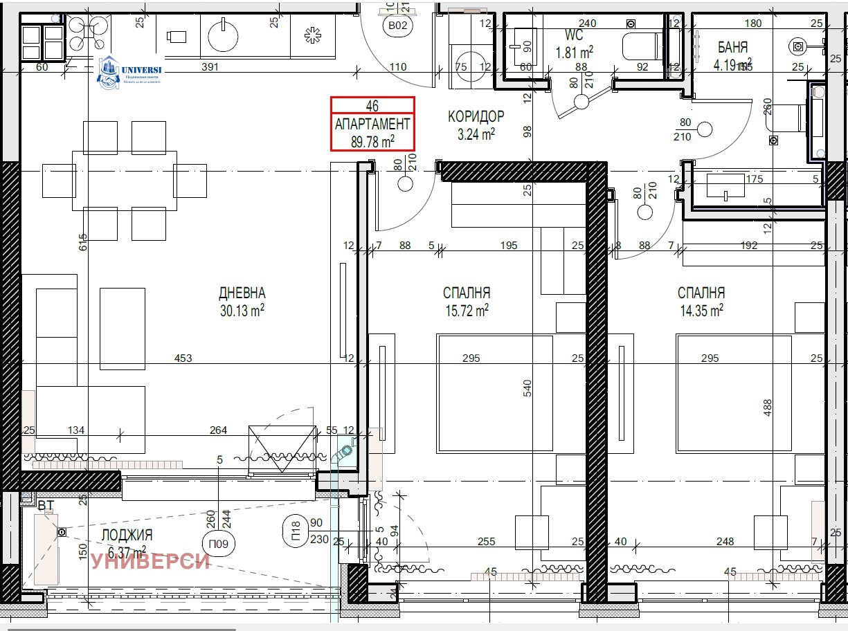
Продаваме южен, непреходен, тристаен апартамент, находящ се в новострояща се жилищна сграда, намираща се на ул. 'Франкофония', в близост до Нов Български Университет и метростанция Мизия .
Сградата е част от мащабен комплекс, изпълняващ се от доказал се в годините инвеститор, развиващ близкия район с обща визия и инфраструктура.
Строителството е в начален етап, като въвеждането на сградата в експлоатация е предвидено до края на 2029-та година.
Отоплението и топлата вода е предвидено да са на газ.
В сградата предлагаме няколко двустайни ателиета, двустайни и тристайни апартаменти.
Посочените цени са с включен ДДС, като в зависимост от етапите на плащане са възможни отстъпки.
Към всеки от имотите има прилежащо склaдово помещение, което е включено в продажната цена.
Още наши оферти можете да намерите на www.universi.bg



