Директни продажби от Инвеститор !
Цени на предварителни продажби - старт на строителството 03.2026г.
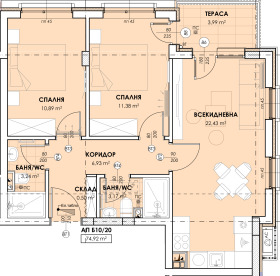
Чудесен тристаен имот с функционално разпределение в Новият ни жилищен проект - 'Престиж 1'.
Затворен комплекс състоящ се от две малки жилищни сгради с модерна архитектура и функционални разпределения, създадени за хора, които търсят комфорт, достъпност и качество в градска среда.
Сградите се намират в един от най-бързоразвиващите се райони в Пловдив, в непосредствена близост до 'Виа Парк Южен' и Коматевско шосе, с лесен достъп до три основни пътни артерии.
Екип от професионалисти с над 30години опит в строителният бранш .
За повече информация очакваме да се чуем на посоченият номер !







