🏡 Тристаен апартамент с изложение - Запад
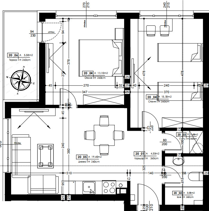
📐 Квадратура - 86,86m² с общи части
💲 Възможност за жилищно кредитиране
🗻 Разположен в една от най-слънчевите и привлекателни зони на брега на
р. Марица, с невероятна гледка към река Марица , парк Розариум и Родопите! 🌄🏙️
🌿 Тишина, уют и зеленина, съчетани с лесен достъп до Пловдив. 🚗🌳
🏗️ Модерна инфраструктура и функционален дизайн за максимален комфорт! 🏡🔝
🅿️ Опция за закупуване на паркомясто на наземно ниво и гараж ситуиран в подземният паркинг - с топла връзка към сградата.
🏡Нов луксозен жилищен комплекс с над 4500 m² паркова среда разположен на метри от брега на река Марица .
Комплексът Ви предлага две сгради ниско строителство разполагащи с :
✨ Високи прозорци придаваши много светлина и обем на помещенията
☯️Частен парк с над 4500 m² площ разполагащ с 🛝 детски кът , 🏓 спортни съоражения на открито , ⛱ беседка и множество място за отдих
🅿️ Паркинг с дебит 150% спрямо жилищата на подземно ниво
➡️Локация: 5 минути до Гранд Хотел Пловдив, на 400м. от Главна пътна артерия водеща към АМ 'Тракия' и Пазарджишко шосе , в непосредствена близост до Пловдивски Университет и стадион Марица
🏗 АКТ 16 - до есента на 2028 г.
ВАЖНО !!! Към всички Агенци - Вече работим с ваши колеги и ще бъдете пренасочвани към тях за съвместна работа !
Виж всички обяви в mhomes.bazar.bg или тук







