Титан Пропъртис с радост предлага на Вашето внимание нов, функционален тристаен апартамент в квартал Малинова долина, София. Застроената площ на имота е 79,71 кв.м., разположен на 1-ви етаж в четириетажна сграда. Този имот е идеален, както за собствено ползване, така и за инвестиция, с източно и южно изложение, което предоставя светлина и свежест през целия ден.
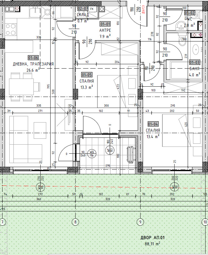
Имотът има следното разпределение: антре, дневна с трапезария и кухненски бокс, 2 спални, баня с тоалетна, отделна тоалетна, склад и двор в размер на 88,11 кв.м., където можете да се отпуснете след дългия ден. Апартаментът е на шпакловка и замазка, за да може да го превърнете в едно удобно и комфортно мяасто за ежедневието Ви.
Имотът се отоплява на електричество. Сградата е с издаден Акт 14 и ще бъде завършена през 2026 година, строи се с изключително висококачествени материали, които осигуряват здравина, енергийна ефективност и дълготрайност.
Фасадата е изградена с окачена система, включваща 10 см. каменна вата и експандиран полистирен, завършена с висококачествена мазилка. Дограмата е 5 камерна от клас Schüco с троен стъклопакет и прекъснат термомост за отлична топло- и шумоизолация.
Тухлите са Wienerberger, а висококачествената хидроизолация е постигната чрез EPDM мембрана. Водопроводната система е изградена от полипропиленови тръби, които предотвратяват натрупването на котлен камък. Блиндираните входни врати Solid, алуминиевите парапети и гаражните врати Hörmann допълват високото ниво на сигурност и комфорт в сградата.
В близост до имота ще намерите:
-Училище: Детска градина 190 в 'Малинова долина' на 456 метра
-Подготвително училище: Забавачница Йори - Проговори на 190 метра
-Банкомат: АТМ Обединена българска банка на 336 метра
-Аптека: BENU Bulgaria на 330 метра
-Болница: Benessere Clinic на 108 метра
-Автобусна спирка: ХОТЕЛ АМБАСАДОР на 446 метра
-Автобусна спирка: РАЗКЛОНА ЗА КВ.СИМЕОНОВО на 446 метра
'С нас, вашето търсене на имот завършва с усмивка.'
За оглед на това и други атрактивни предложения, не се колебайте да ни потърсите на посочения телефон или да ни изпратите данните си чрез формата за запитване на сайта.
Реф. номер: 2092429.
Виж всички обяви в titan_properties.bazar.bg или тук
        
      
        
        
        
        
        
        
        
        
        
        
        
        
        
            
            
            
            
            
            
            
            
            
            
            
            
            






