НОВА СГРАДА!!! ОТЛИЧНА ЛОКАЦИЯ!!! ЮГОИЗТОЧНО ИЗЛОЖЕНИЕ!!!
Предлагаме тристаен апартамент в новострояща се бутикова сграда с модерна визия и само 4 етажа, разположена на отлично място на 10 м от магазин, в спокоен и уреден район с лесен достъп до централната част на града.
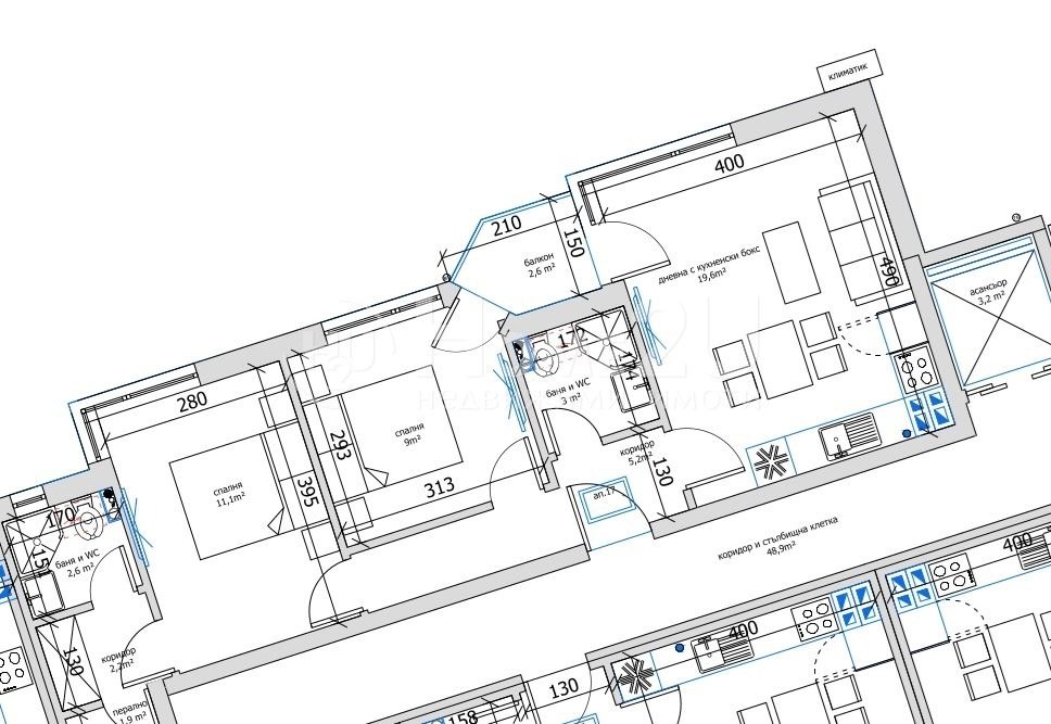
Апартаментът е с югоизточно изложение и много добра вътрешна организация: светла дневна с кухненски бокс, две самостоятелни спални, баня и тоалетна, антре и тераса. Всички помещения са с правилни форми и функционални площи.
Сградата се изпълнява с висококачествени материали от доказан строител. Контролиран достъп, асансьор и озеленена околна среда.
Подходящ както за собствено ползване, така и за инвестиция.
Не изпускайте това предложение свържете се с нас още днес за повече информация и огледи, като цитирате този код - 129359!







