ЗАПОЧНАЛО СТРОИТЕЛСТВО!!! ЮЖЕН!!! ГЛЕДКА КЪМ ЕЗЕРОТО И ГРАДА!!!
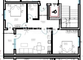
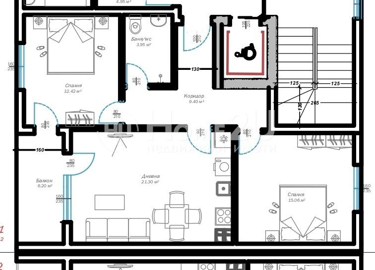
Тристаен апартамент в новострояща се сграда в кв. Пчелина, гр. Варна. Разположен е на трети етаж от четириетажна сграда, с южно изложение и панорамна гледка към града и езерото.
Жилището е с функционално разпределение и се състои от просторен дневен тракт с кухненска част и място за трапезария, две светли и комфортни спални, коридор, баня с тоалетна и прилежащо мазе.
Сградата е с удобен достъп, намира се на три минути от магазин и се изпълнява с качествени материали. Подходящ имот както за живеене, така и за инвестиция.
Имотът е отличен избор както за живеене, така и за инвестиция с бъдеща стойност.
Свържете се с нас още днес, за да запазите час за оглед, като цитирате този код - 136461







