🏗 НОВО СТРОИТЕЛСТВО! ДОКАЗАН СТРОИТЕЛ! ВЪЗМОЖНОСТ ЗА ПАРКОМЯСТО И ГАРАЖ!
Имоти Премиер предлага за продажба тристаен апартамент в новострояща се сграда в кв. Владиславово, гр. Варна. Сградата е с издадено разрешение за строеж и ще бъде изпълнена от доказан и коректен строител с отлична репутация и високо качество на изпълнение.
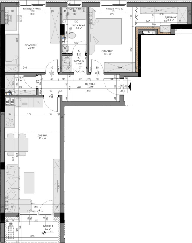
📐 Площ: 101 кв.м.
🏢 Етаж: 2 от 5
Жилището се състои от:
Входно антре
Просторен дневен тракт с кухненска част
Две самостоятелни спални
Баня с тоалетна
Отделна тоалетна / килер (в зависимост от проекта)
Тераса
🚗 Към сградата са предвидени външни и вътрешни паркоместа, както и гаражи, достъпни за закупуване.
✨ Строителството се изпълнява с висококачествени материали, съвременни технологии и внимание към всеки детайл.
🏘 Предлагат се различни типове апартаменти едностайни, двустайни и тристайни, с различни квадратури и разпределения.
📍 Локацията е отлична в близост до главни пътни артерии, търговски обекти, училища, детски градини и спирки на градски транспорт.
✅ Подходящ както за семейно живеене, така и за инвестиция с цел отдаване под наем.
📞 Код на офертата: 375234







