ЗАПОЧНАЛО СТРОИТЕЛСТВО! ДОКАЗАН ИНВЕСТИТОР И СТРОИТЕЛ!
Представяме Ви нова жилищна сграда с утвърден строител, чието име е символ на високо качество, сигурност и дългосрочна стойност.
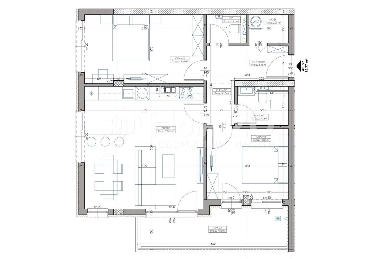
Проектът се отличава с правилни форми на стаите и функционални разпределения, създадени с мисъл за ежедневния комфорт и практичност. Всеки детайл е внимателно обмислен, за да предложи максимално удобство и хармония в дома. Разпределенията на апартаментите осигуряват простор, светлина и удобство при обзавеждане. Разположена е на ключово място в район, който се развива динамично и предлага отлична инфраструктура, множество учебни заведения и спокойна градска среда. На партерното ниво са разположени гаражи, като има и многоженство паркоместа, които могат да бъдат закупени от бъдещите собственици. В близост ще бъде изграден парк, както и частна многопрофилна болница.
Бъдете сред първите и изберете най-атрактивните апартаменти в сградата. За повече подробности или да закупите имот, свържете се с нас и цитирайте кода: 140095!







