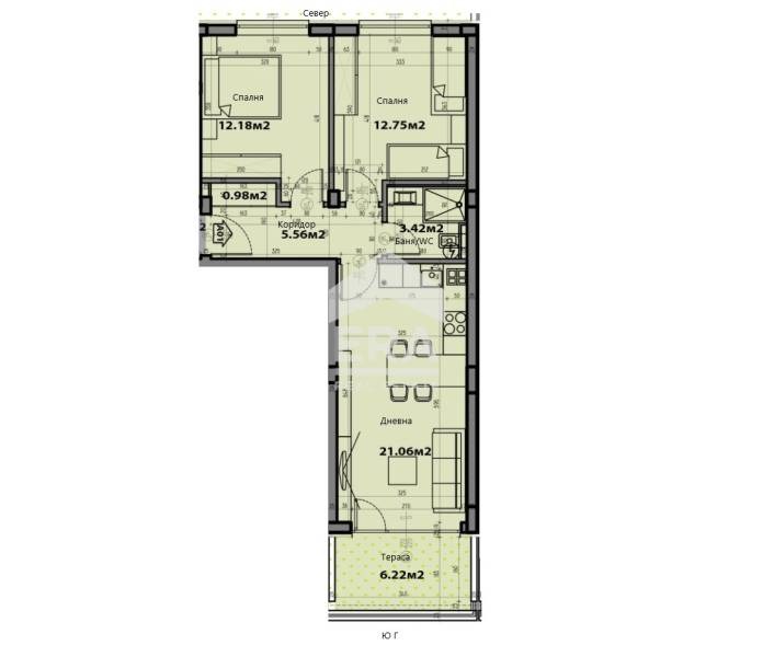
ЕРА Варна Тренд предлага за продажба тристаен апартамент със собствен двор, в новострояща се сграда в кв. Виница. Имотът е със застроена площ 66,04 кв.м (76,91 кв.м с общите части), както и прилежащ двор с площ 6,22 кв.м, разположен на първи партерен етаж от общо 4 етажа. Състои се от дневна с кухненски бокс (21,06 кв.м) и излаз на двор (6,22 кв.м), две спални (12,18 кв.м и 12,75 кв.м), коридор (5,56 кв.м), баня с тоалетна (3,42 кв.м) и килер/перално помещение (0,98 кв.м). Изложението е юг (дневна) - север (спални). Статутът е на апартамент.
Жилището се продава необзаведено, завършено до степен БДС: коридор, кухня, стаи: под - циментова замазка, стени - бяла гипсова мазилка, таван - гипсова шпакловка. Санитарен възел: стени и таван - мазилка, под - замазка, без санитарно обзавеждане. Отоплението е решено със сплит системи, с предварително вграден в стените тръбен климатичен път. Ел. инсталация - вътрешна и външна 100% завършени на немската компания Schneider Electric и съответно електромер. ВиК: външна 100% завършена с монтиран главен водомер, вътрешна - на тапа. Дограма - иновативна 7-камерна система, троен стъклопакет, обогатен с благороден газ (аргон) с отлични шумоизолационни и топлоизолационни показатели, 80 мм профил на дограмата. Външна врата: висок клас входна врата - блиндирана.
Тристайният апартамент се намира в бутикова жилищна сграда в кв. Виница. Сградата е с модерна архитектура и дизайнерски решени общи части: Фасада - изпълнена от система с топлоизолация EPS 10 см по детайл със силикатна мазилка; Асансьор ORONA. В момента е на начален етап на строителство - строеж на междинни етажи. Очаква се да бъде въведена в експлоатация през 2026 г. Сградата е с три входа, четириетажна, с нескриваема морска панорама. Намира се на разстояние 200 м от централната ул. Княз Борис III, с непосредствен достъп до центъра и курортните комплекси на север от града. В близост до детска градина, автобусна спирка, супермаркети, големи търговски обекти, като на жителите на сградата са осигурени ежедневни удобства. Разполага със собсвен кът за игри и прилежащи зелени площи.
Има възможност за допълнително закупуване на паркомясто. В двора на сградата са обособени 65 паркоместа с 24-часово видеонаблюдение и 2 бр. зарядни станции за електромобили тип Fast charge с 22 KW мощност. За спокойствието и сигурността на живущите са предвидени множество видеокамери, разположени на ключови места, които следят входовете на сградата и паркинга за автомобили. Видеодомофонната инсталация във всяко жилище е свързана с видеокамера, монтирана във всеки вход.
Оферта 0221977







