БИЛДИНГ БОКС предлага за продажба тристаен апартамент в начален етап на строителство в кв. Гагарин.
Предимства на имота:
- ЛОКАЦИЯ: Комплексът е разположен в квартал Гагарин, в близост до основни пътни артерии, детски градини, училища и паркове, супермаркети - 'Lidl' и 'Kaufland', като в същото време е на 10 минути пешеходно разстояние от центъра на гр. Пловдив.
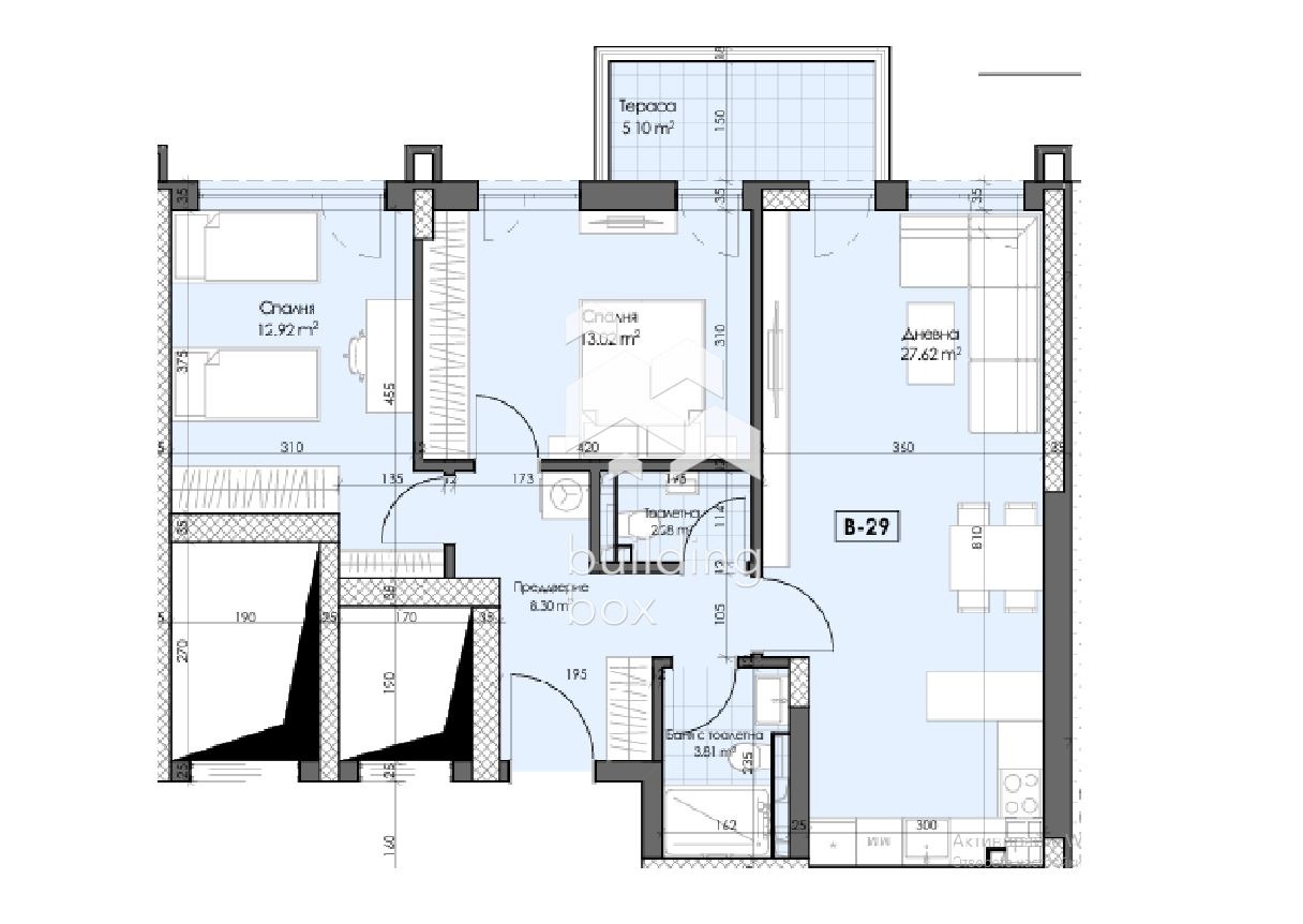
- РАЗПРЕДЕЛЕНИЕ: Просторна всекидневна с кухненски бокс, две спални, антре, баня с тоалетна, тоалетна и тераса.
- ПЛОЩ: Апартаментът е с обща площ от 104,96 кв.м.
- ОТОПЛЕНИЕ: Електричество.
- ИЗЛОЖЕНИЕ: ЗАПАД, с гледка към вътрешния двор на сградата.
- ЕТАЖ: 6-ти етаж от общо 14.
- ПАРКИРАНЕ: Възможно закупуването на паркомясто от инвеститора.
- СГРАДА: Нова сграда единствена от инвеститор с богат опит и над 17 години в бранша.
- ЕТАП НА СТРОИТЕЛСТВО: Към момента сградата е в начален етап на строителство, очаква се въвеждане в експлоатация началото на 2028г.
БИЛДИНГ БОКС предоставя безплатна консултация и съдействие при финансиране на избрания от Вас имот.
Оферта 23310







