Translations in other languages:
All real estate ads published on imot.bg have been translated into English and published on the partner site
Получихте нова обява по филтър





Промяна на цена на наблюдавана обява


стара цена
нова цена
imot.bg – обяви за продажби и наеми на имоти
Сайт за имоти №1
Translations in other languages:
All real estate ads published on imot.bg have been translated into English and published on the partner site
ДОБАВИ ОБЯВА Редакция на обява
Начало Публикуване Търсене Нови сгради Агенции Новини Кредити Моят имот
Продава 3-СТАЕН
град Пловдив, Гагарин
161 500 €
315 866.55 лв.

(1 335 €, 2 611.03 лв./m2)
Цената е с включено ДДС
История на цената
Публикувана в 16:00 на 8 декември, 2025 год.
Обявата е посетена 43 пъти.
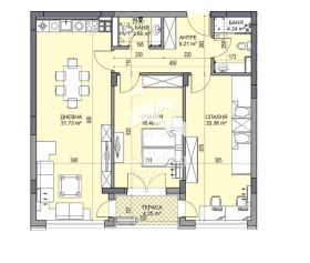
Площ:
121 m2
Етаж:
9-ти от 12
Строителство:
Тухла, 2027 г.

Описание на имота:


БИЛДИНГ БОКС предлага за продажба тристаен апартамент в напреднал етап на строителство в кв. Гагарин.

Предимства на имота:
- ЛОКАЦИЯ: Комплексът е разположен в квартал Гагарин, в близост до основни пътни артерии, детски градини, училища и паркове, както и на 10 минути пешеходно разстояние от центъра на гр. Пловдив.
- РАЗПРЕДЕЛЕНИЕ: Просторна всекидневна с кухненски бокс, с площ от 31,73 кв.м, две спални, антре, две бани с тоалетни и две тераси.
- ПЛОЩ: Апартаментът е с обща площ от 121,47 кв.м.
- ОТОПЛЕНИЕ: Електричество.
- ИЗЛОЖЕНИЕ: ЮГ.
- ЕТАЖ: 9-ти етаж от общо 12.
- ПАРКИРАНЕ: Наличен подземен и надземен паркинг с възможност за закупуване на паркоместа и гаражи.
- СГРАДА: Модерна сграда, проектирана от инвеститор с опит и история в гр. Пловдив.
- ЕТАП НА СТРОИТЕЛСТВО: Строителството е стартирало през м. Юни 2024г. Въвеждане в експлоатация се очаква в началото на 2027г.

БИЛДИНГ БОКС предоставя безплатна консултация и съдействие при финансиране на избрания от Вас имот.
Оферта 21711
Особености
Тухла
Асансьор
В затворен комплекс
Контрол на достъпа
С гараж
С паркинг
За контакт:
0879900984
Брокер:
БИЛДИНГ БОКС Пловдив Запад
0879 900 984
Офис: гр. Пловдив
Още оферти от брокера: Продава | Дава под наем | Купува | Наема
Агенция:
БИЛДИНГ БОКС
0877734412
БИЛДИНГ БОКС logo
Медал за прослужено време
В imot.bg от 2013 г.
buildingbox.imot.bg
Адрес:
област София, гр. София, София ЕИК207674103
ИЗПРАТИ ЗАПИТВАНЕ
ИЗПРАТИ ЗАПИТВАНЕТО

Продава 3-СТАЕН
град Пловдив, Гагарин
Обява: 1c176520240354412

161 500 €
315 866.55 лв.
История на цената
(1 335 €, 2 611.03 лв./m2)

Цената е с включено ДДС
ЗАПАЗИ ОБЯВАТА

Местоположение: град Пловдив, Гагарин

Виж още имоти от Пловдив или още Тристайни Апартаменти в Пловдив
Допълнителни данни за имотите в района и сравнение с други райони: Търсене в АРХИВ 2013 - 2025 г.











Добави/редактирай
вид имот и район
*Средните цени са определени чрез медиана стойност.
Още обяви в imot.bg
Въпроси и предложения към imot.bg
КОНТАКТИ | SMS КОДОВЕ | ПОМОЩ | ОБЩИ УСЛОВИЯ | РЕКЛАМА | ЗАЩИТА НА ЛИЧНИТЕ ДАННИ | КАРТА НА САЙТА |
Резон Медия | Имоти | Автомобили | Работа | Новини | Обяви | Преводи и легализация 2002-2025 ® Copyright imot.bg
© imot.bg ползва и препоръчва хостинг услугите на Bulinfo.net
Следвайте ни в: