Жилището е завършено по индивидуален проект с внимание към всеки детайл, без компромис по отношение на качество и използвани материали. Продава се обзаведено с висок клас мебели и електроуреди.
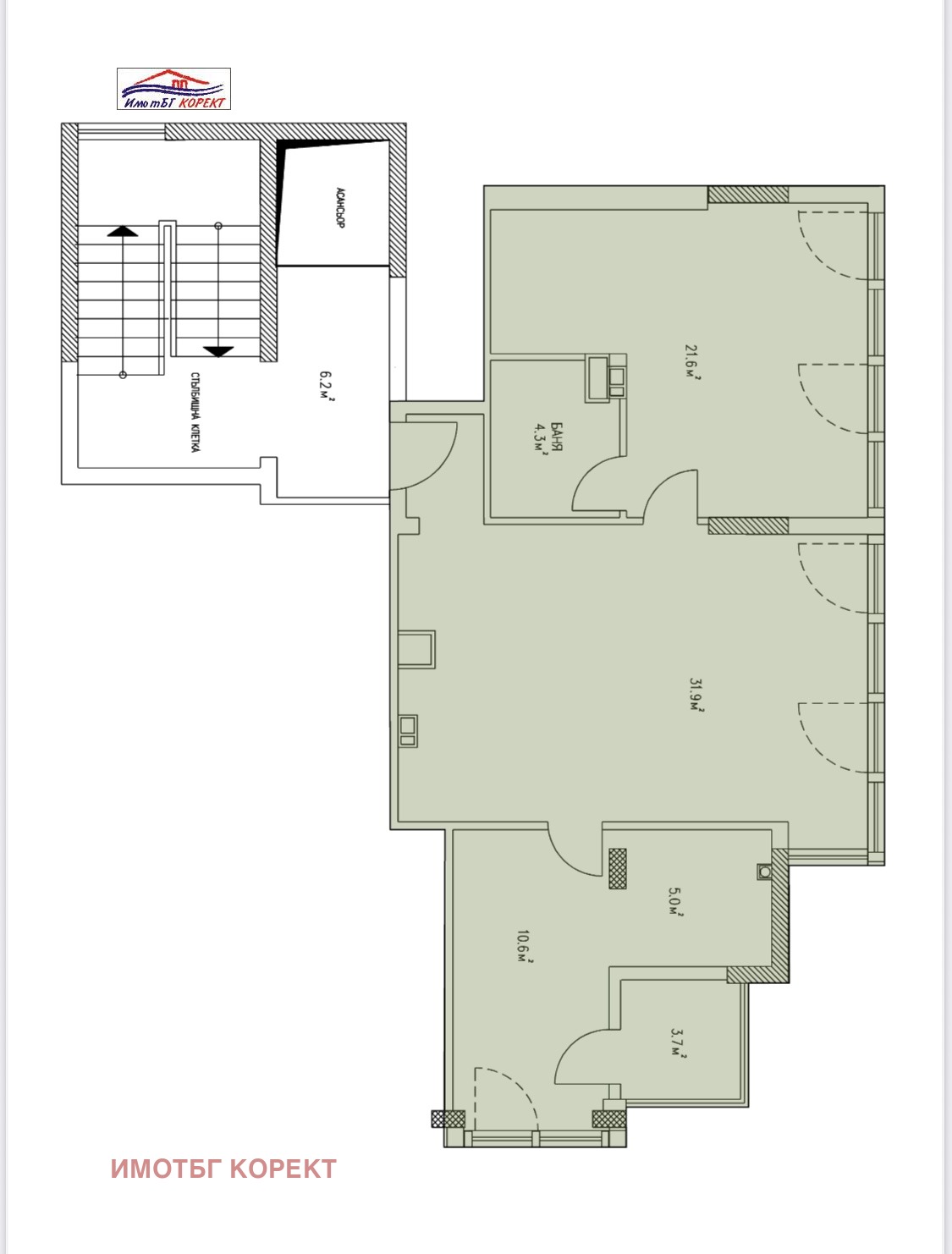
Разпределение: Входно антре, всекидневна, отделна кухня, спалня с дрешник, баня с тоалетна и тераса.
Изложение: Запад и Север.
Възможност за покупка на паркомясто на отделна цена.
Локация: Широк център, в близост до метростанции 'Опълченска' и 'Константин Величков', мол 'Стамболийски' и бул. 'Тодор Александров'.
***АГЕНЦИЯТА ОКАЗВА СЪДЕЙСТВИЕ ЗА БАНКОВО ФИНАНСИРАНЕ***
ЗА КОНТАКТИ: 0889934687 / ГЕОРГИ НИНОВ /.
***ОГЛЕДИ ВКЛЮЧИТЕЛНО СЪБОТА И НЕДЕЛЯ***
Виж всички обяви в imotbgkorekt.bazar.bg или тук







