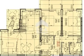
Тристаен апартамент за продажба в новострояща се сграда. Имотът е със застроена 108,20 площ кв.м /132,43 кв.м с общите части/, разположен на 9 етаж от 13 етажа. Състои се от дневна с кухненски бокс /32,10 кв.м/ и излаз на тераса /9,14 кв.м/, спалня 1 /13,11 кв.м/, спалня 2 /12,02 кв.м/, коридор /8,63 кв.м/, баня с тоалетна /3,33 кв.м/, тоалетна/2,22кв.м / и килер /0,5 кв.м/ балкон/ 6,43 кв.м/.
Изложение: юг. Статутът е на апартамент.
Жилището се продава необзаведено. Ще бъде завършено до степен БДС - на шпакловка и замазка с поставена ПВЦ дограма и входна блиндирана врата. Отоплението ще бъде с електричество.
Предлаганият имот е част от нова жилищна сграда, чието строителство ще стартира началото на месец ноември. Срок на изпълнение: април 2028г. Предлагат се гъвкави схеми на плащане: 1 вариант: 30% ПД, 30% на кота 0, 20% - втори етаж, 10% - А14 и 10% А 15, 2 вариант: 40% ПД, 50% - А14 и 10% - А 15, 3 вариант: 30 %ПД, 60% - А14, 10% А15 и 4 вариант: 20% ПД, 70% - А14, 10% - А15. Сградата се отличава с иновативен екстериорен и интериорен дизайн. Конструкцията е монолитна стоманобетонна, осигуряваща стабилност и дълъг експлоатационен живот. За фасадата са използвани топлоизолационни системи от последно поколение, гарантиращи отлична енергийна ефективност и комфорт през всички сезони.
Квартал Възраждане 4 във Варна е един от новите и бързоразвиващи се жилищни райони на града. Той се отличава с модерно строителство, просторни комплекси и добре организирана инфраструктура. В близост има училища, детски градини, магазини и зелени площи, което го прави предпочитано място за млади семейства. Районът предлага спокойна среда, съчетана с удобен достъп до центъра на Варна и главните пътни артерии.Код:0708776
Оферта 0708776







