Имоти Премиер предлага за продажба прекрасен тристаен апартамент намиращ се в ново строяща се жилищна сграда във Възраждане 4
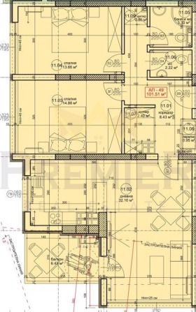
Имотът е разположен на единадесети етаж и има следното разпределение: широк коридор, прекрасна дневна с кухненска част /32.10кв.м/, две непреходни спални /14.88кв.м и 13.66 кв.м /, баня и тоалет в едно, отделно тоалет, перално помещение и тераса.
Сградата ще бъде изградена с модерна визия и съвременен дизайн.
Строителството е качествено, съчетано с комфорт и функционалност.
Предлагаме двустайни, тристайни и четиристайни апартаменти съобразени с нужните на семействата и стила на живот.
Осигурени са и подземни и надземни паркоместа за удобство на живущите.
За повече информация се обадете на посочения телефон и цитирайте код: 374067
Виж всички обяви в imotipremier.bazar.bg или тук
        
       
         
         
         
         
             
             
             
            






