АКТ 14! ИНВЕСТИТОР С НАД 30 Г. ОПИТ!
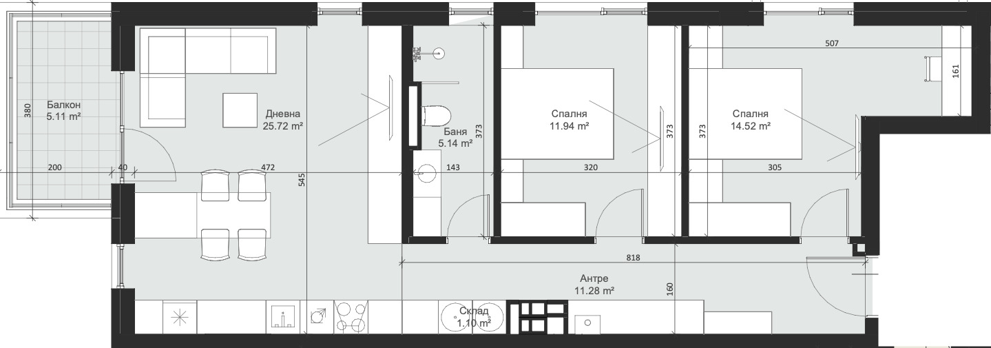
Представяме Ви тристаен апартамент в новостроящ се комплекс в една от най-перспективните и развиващи се части на Малинова долина. Комплексът е разположен в зона с ниско застрояване максимум 4 етажа. Проектът се отличава с високо качество на строителството, премиум изпълнение и богато озеленени пространства, които ще осигуряват спокойствие и уединение на живущите. Сградите ще бъдат изпълнени с окачена вентилируема фасада, луксозен и устойчив във времето дизайн, както и луксозни общи части. Отоплението е предвидено с газ и електричество. Разполагаме с ограничен брой двустайни, тристайни и четиристайни апартаменти. За да изберете и запазите Вашия нов дом, свържете се с нас на посочения по-долу телефонен номер. Референтен код:486 4В-4







