Революшън Естейт Ви представя тристаен апартамент в комплекс от 4 сгради С АКТ 14 в ж.к. Малинова долина.
Локация: В непосредствена близост до Околовръстен път, детска градина, училище и множество търговски обекти.
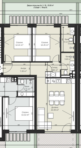
Имотът е разположен на 1-ви жилищен етаж от общо 4.
Площ РЗП 94.13 кв.м. // ЗП 80.83 кв.м.
Разпределение: Входно антре, хол с кухненски бокс, две спални, две бани с тоалетни, склад и двор с площ - 52,44 кв.м.
Степен на завършеност: АКТ 14;
Очаквано завършване: 2027г.
За повече информация не се колебайте да се свържете с нас и да цитирате референтен номер: 10222 в сграда с ID: 1017.







