ТРИСТАЕН апартамент в новострояща се сграда в кв. Самара , град Стара Загора
Адрес Недвижими имоти има удоволствието да Ви предложи ТРИСТАЕН апартамент в модерна жилищна кооперация, разположена в тихата част на кв. Самара един от най-предпочитаните и бързоразвиващи се райони на града.
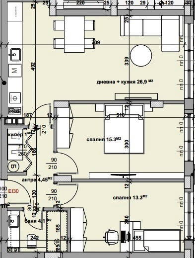
Имотът има следните характеристики :
Площ: 92 кв. м
Разпределение:
o просторно антре
o светла и просторна всекидневна с кухненски бокс
o две самостоятелни спални
o баня с тоалетна
o тераса идеална за сутрешно кафе или отдих
Степен на завършеност издава се по БДС:
стени и тавани шпакловка
под циментова замазка
електрическа инсталация до ключ и фасунга
PVC дограма енергоспестяваща
СГРАДА:
модерна архитектура и елегантна визия
луксозно завършени общи части
асансьор с безшумен механизъм
контролиран достъп
възможност за гараж или паркомясто
МЕСТОПОЛОЖЕНИЕ ТРИСТАЕН апартамент в град Стара Загора, кв. Самара :
тиха и спокойна среда
бърз достъп до центъра на града
в близост до спирки на градски транспорт, училища, детски градини
супермаркети, търговски обекти и зелени площи
ПРЕДИМСТВА:
компактен, функционален и светъл апартамент
подходящ за собствено ползване или инвестиция
нова, модерна сграда с дългосрочна стойност
уютен квартал с отлична инфраструктура
Обади се СЕГА и цитирай този код: 666828







