📌 гр. Стара Загора, Самара 3 📌
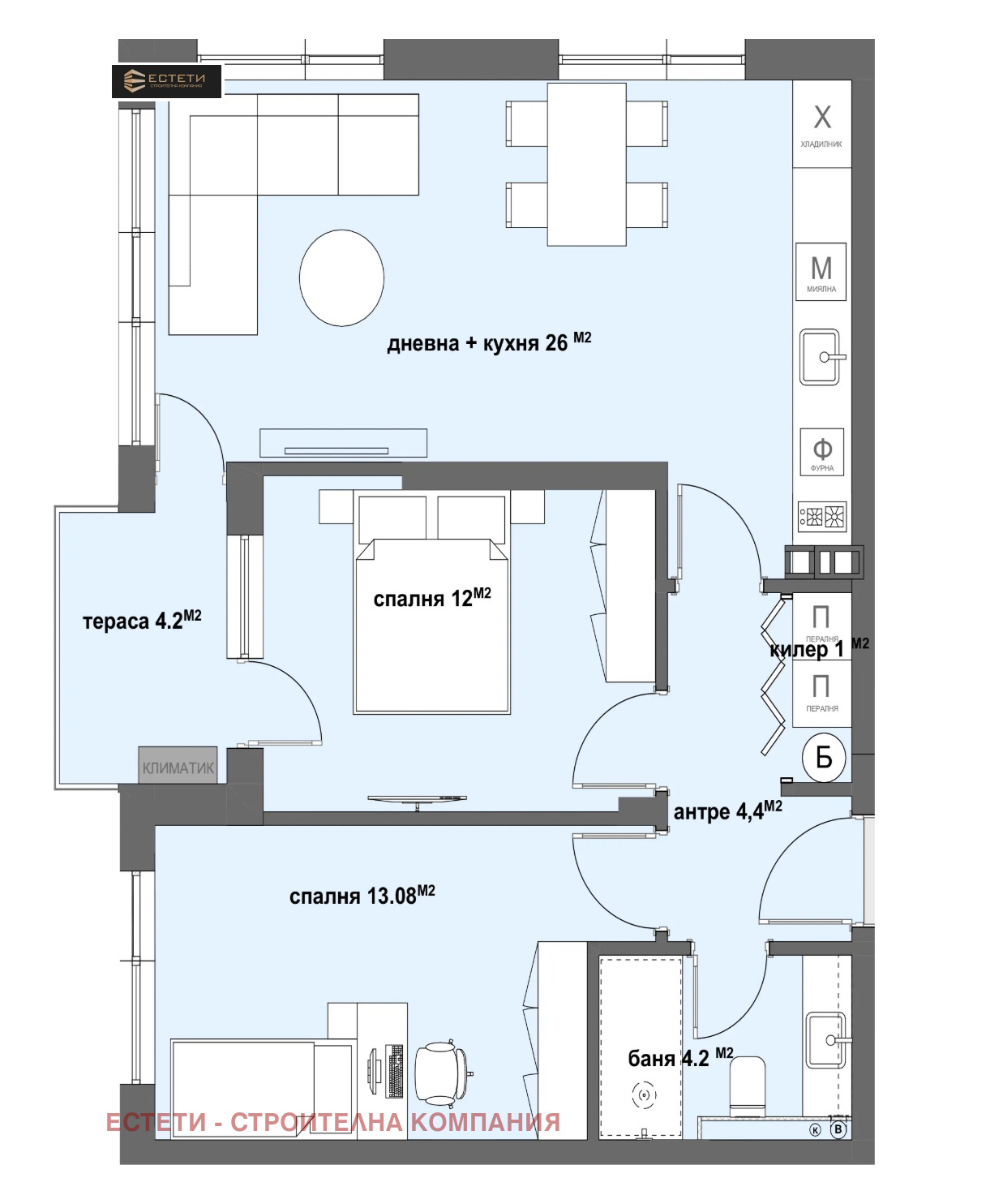
🏠Тристаен апартамент, състоящ се от: антре, дневна с кухня, 2 спални, баня с тоалетна, килер,тераса. Квадратура - 92 кв.м.
🌍 Изложение - Запад
🏰 Собствен парк с детска площадка
💎 Луксозно фоайе и общи части
🍀🌱Достъпна зелена среда
🚧 Контролиран достъп и видеонаблюдение
🚗 Комфортни подземни гаражи
🧐 За информация и огледи: Не се колебайте да ни потърсите! 🔎
Виж всички обяви в esteti.bazar.bg или тук







