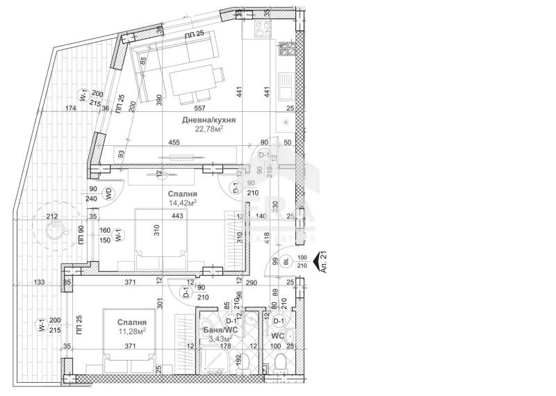
ЕРА Лайф обявява за продажба апартамент със застроена площ 97,90 кв.м. (обща площ 107 кв.м.), разположен на пети етаж от седем в новопостроена сграда. Имотът е със следното разпределение: антре, дневен тракт с кухненски бокс - 22,78 кв.м., две спални - 11,28 и 14,42кв.м. - тераса с излаз от дневната и малката спалня, тоалетна и комбиниран санитарен възел - 3,43 кв.м. Виж раздел 'План' . Към имота има и паркомясто. Жилището е със статут на апартамент.
Апартаментът ще бъде завършен по БДС стандарт - на шпакловка и замазка. Апартаментът се продава без обзавеждане. Отоплението е на ток. Очакван срок на завършване декември 2026г.
Предлаганото жилище е част от луксозен жилищен комплекс в непосредствена близост до Университетска болница 'Света Марина'. Сградата е с иновативен, функционален и елегантен дизайн. Разположена в район с добър асфалтов достъп, тя предлага бърз и лесен достъп до основните градски артерии. При планирането на комплекса основно внимание е обърнато на удобството и безопасността на бъдещите жители. За сградата ще се използва стоманобетонова, гредова конструкция, укрепена с носещи колони, греди, шайби и здрави стоманобетонови плочи. Всеки елемент от проекта е избран с грижа за устойчивостта и дълготрайността на сградата, следвайки строгите национални стандарти. Код: 0708733
Оферта 0708733







