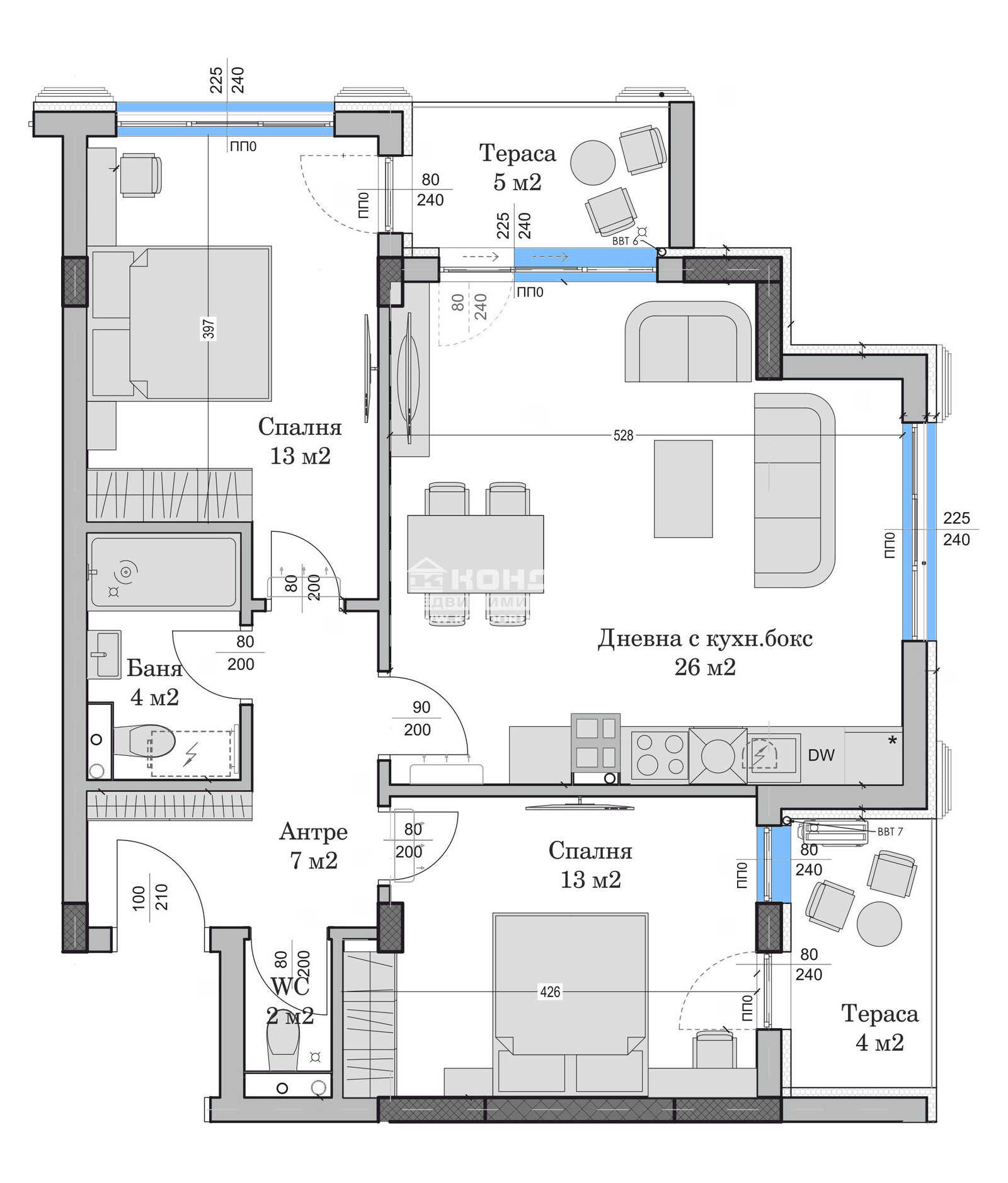
Оферта 67466: Предлагаме на вашето внимание тристаен апартамент с изложение юг/запад в новоизграждаща се Иновативна и модерна сграда със собствен стил с изчистена визия, проектирана така, че да създаде максимален комфорт и уют за живеене. Жилището се състои от ъглова дневна 26кв.м. с трапезария и кухненски бокс, две самостоятелни спални по 13кв.м., баня с тоалетна, втора тоалетна, антре с място да гардероб и две тераси. Към апартамента има складово помещение на етажа включено в цената. Проектът предвижда застрояване, просторни и панорамни жилища, вътрешен двор с оформени зелени зони за релакс и почивка. Сградата привлича вниманието със своята локация, разположена в близост до Гребна база и парк Отдих и култура, обособили се като едни от най-развиващите се и предпочитани райони за живеене в града, както и до няколко от най-добрите болници, а именно ( Пълмед, Селена, Хирургиите ). В близост до сградата има големи хранителни магазини, детска градина, училище, автобусни спирки и всичко необходимо за едно нормално ежедневие. Инвеститора осъществява сгради, които задават нов стандарт в жилищното строителство. Комбинирайки модерни технологии, безкомпромисно качество и прецизен дизайн, за да осигурим среда, която предлага комфорт, естетика и функционалност. Сградата ще бъде с ИЗЦЯЛО окачена, ВЕНТЛИРУЕМА ФАСАДА с енергийна ефективност от висок клас, система УМЕН ДОМ, високоскоростни асансьори, както и към всяко паркомясто ще има прекаран трифазен ток за поставяне на ЗАРЯДНА СТАНЦИЯ за електроавтомобили, Видеонаблюдение, най-висок клас блиндирани врати за висока степен на сигурност, master key система за още по-сигурен контрол на достъп, автоматизирани системи против пожари , които осигуряват бърза реакция в случай на необходимост. Паркирането е решено с голям подземен както и надземен паркинг като има голям избор на паркоместа и гаражи. Гъвкави схеми на разсрочено плащане в рамките на строителството, както и съдействие за банково кредитиране с изключително изгодни условия за клиенти на агенция !!!
ВИЖТЕ ОЩЕ ИЗГОДНИ ОФЕРТИ НА https://www.kondorimoti.com/ С ЕЖЕДНЕВНА АКТУАЛИЗАЦИЯ!







