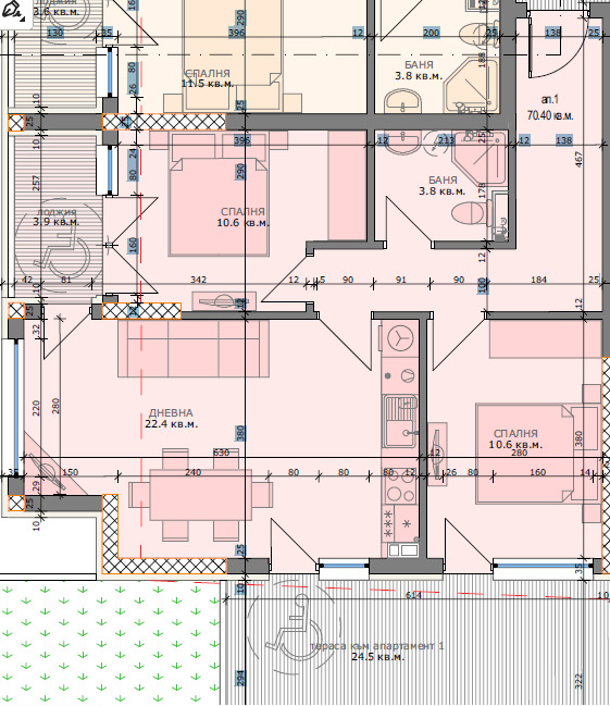
Имоти Премиер представя на вашето внимание тристаен апартамент с площ от 83.84 кв.м., разположен в модерна жилищна сграда в етап на строителство. Имотът е подходящ както за собствено ползване, така и за инвестиция с цел отдаване под наем.
🏠 Разпределение:
Просторна дневна с кухненски бокс и трапезария 22.4 кв.м.
Две спални, по 10.6 кв.м.
Баня с тоалетна 3.8 кв.м.
Лоджия - 3.9 кв.м
Тераса - 24.5 кв.м.
Обща площ:83.84 кв.м.
Етаж 1 от 5 / разположен над жилищен етаж
🏗️ Сграда:
Масивно монолитно строителство
Съвременна архитектура
Предвидени асансьор и подземни гаражи/паркоместа
В момента сградата е на груб строеж (етап Акт 14 )
Очакван срок за въвеждане в експлоатация: юли 2026г.
🌳 Предимства:
Панорамна гледка към зеленина и хълмове
Тиха и спокойна жилищна зона с добър достъп
Югозападно изложение с естествена светлина
Лесен и бърз достъп до магазини, спирки на градски транспорт, училища и други удобства
⚡ Допълнителна информация:
Възможност за закупуване на паркомясто или гараж
Гъвкави схеми на плащане
Апартаментът ще бъде издаден в състояние по БДС с възможност за довършване по индивидуален проект
За повече информация и оглед, моля позвънете на посочения телефон и цитирайте код: 370730







