Translations in other languages:
All real estate ads published on imot.bg have been translated into English and published on the partner site
Получихте нова обява по филтър





Промяна на цена на наблюдавана обява


стара цена
нова цена
imot.bg – обяви за продажби и наеми на имоти
Сайт за имоти №1
Translations in other languages:
All real estate ads published on imot.bg have been translated into English and published on the partner site
ДОБАВИ ОБЯВА Редакция на обява
Начало Публикуване Търсене Нови сгради Агенции Новини Кредити + Още... Моят имот
Продава 3-СТАЕН
град Варна, Левски 1
272 221 €
532 418.00 лв.

(1 701 €, 3 326.87 лв./m2)
Не се начислява ДДС
История на цената
Коригирана в 8:37 на 14 октомври, 2025 год.
Обявата е посетена 333 пъти.
Площ:
160 m2
Етаж:
5-ти от 9
Строителство:
Тухла, Ще бъде въведен в експлоатация 2026 г.

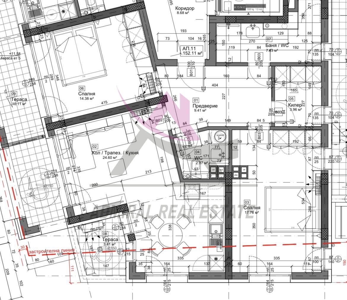
Описание на имота:


Недвижими имоти 'Admiral Real Estate' Ви предлага за продажба тристаен апартамент, находящ се в сграда тип ново строителство, в непосредствена близост до Лидл и УМБАЛ Св. Марина . Имотът е разположен на пети етаж в девететажна сграда, която е в процес на изграждане. Доказан строител с високо качество на изпълнение и съвременни технологии. Жилището се състои от входно антре, дневна с кухненска част, две спални, две санитарни помещения, тераса, килер. Общата площ на апартамента е 160 кв.м. Предлага се възможност за закупуване на външни и подземни паркоместа. Сградата се намира в район с изградена инфраструктура и отлична локация в близост до супермаркети, болници, учебни заведения и спирки на градски транспорт. Подходящ избор за семейства, търсещи комфорт и удобство в динамична градска среда. Гъвкави схеми на плащане : 35% при предварителен договор, 35% при акт 14, 30% при акт 15. Недвижими имоти 'Admiral Real Estate' предлага пълно съдействие при необходимост от банково финансиране с преференциални условия. За повече информация и огледи : Валентина Игнатова Тел. 0878 699 443 Код на офертата : 229387
Виж всички обяви в admiralres.bazar.bg или тук
Особености
Тухла
Асансьор
С гараж
С паркинг
Интернет връзка
С действащ бизнес
Видео наблюдение
Контрол на достъпа
За ремонт
Възможност за дан. кредит
За контакт:
0878699443
Брокер:
Валентина Игнатова
0878699443
Офис: Варна , бул.Цар Освободител 109 А офис 12
Още оферти от брокера: Продава | Дава под наем | Купува | Наема
Агенция:
АДМИРАЛ РИЪЛ ЕСТЕЙТ ЕООД
0886732489
АДМИРАЛ РИЪЛ ЕСТЕЙТ ЕООД logo
Медал за прослужено време
В imot.bg от 2016 г.
admiralres.imot.bg
Адрес:
област Варна, гр. Варна, бул.' Цар Освободител' 109А, офис 12
http://imotiadmiral.com
ИЗПРАТИ ЗАПИТВАНЕ
ИЗПРАТИ ЗАПИТВАНЕТО

Продава 3-СТАЕН
град Варна, Левски 1
Обява: 1c175221816724649

272 221 €
532 418.00 лв.
История на цената
(1 701 €, 3 326.87 лв./m2)

Не се начислява ДДС
ЗАПАЗИ ОБЯВАТА

Местоположение: град Варна, Левски 1

Виж още имоти от Варна или още Тристайни Апартаменти във Варна
Допълнителни данни за имотите в района и сравнение с други райони: Търсене в АРХИВ 2013 - 2025 г.











Добави/редактирай
вид имот и район
*Средните цени са определени чрез медиана стойност.
Още обяви в imot.bg
КОНТАКТИ | SMS КОДОВЕ | СТАТИСТИКА | ПОМОЩ | ОБЩИ УСЛОВИЯ | РЕКЛАМА | ТОП ОФЕРТА | Въпроси и предложения към imot.bg
Резон Медия | Имоти | Автомобили | Работа | Новини | Обяви | Преводи и легализация 2002-2025 ® Copyright imot.bg
© imot.bg ползва и препоръчва хостинг услугите на Bulinfo.net
Следвайте ни в: