Translations in other languages:
All real estate ads published on imot.bg have been translated into English and published on the partner site
Получихте нова обява по филтър





Промяна на цена на наблюдавана обява


стара цена
нова цена
imot.bg – обяви за продажби и наеми на имоти
Сайт за имоти №1
Translations in other languages:
All real estate ads published on imot.bg have been translated into English and published on the partner site
ДОБАВИ ОБЯВА Редакция на обява
Начало Публикуване Търсене Нови сгради Агенции Новини Кредити + Още... Моят имот
Продава 3-СТАЕН
град Варна, Левски 1
198 665 €
388 554.97 лв.

(1 839 €, 3 596.77 лв./m2)
Не се начислява ДДС
История на цената
Коригирана в 8:36 на 14 октомври, 2025 год.
Обявата е посетена 597 пъти.
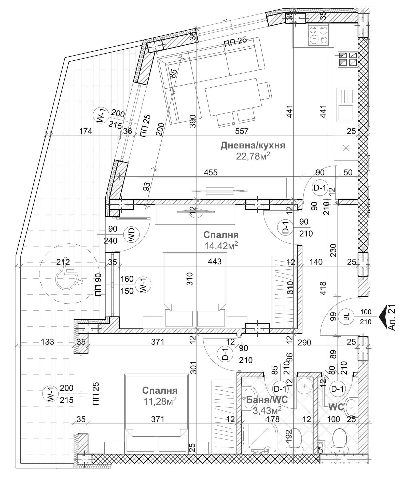
Площ:
108 m2
Етаж:
5-ти от 7
Строителство:
Тухла, Ще бъде въведен в експлоатация 2026 г.

Описание на имота:


ПРОСТОРЕН ТРИСТАЕН / Ж.К. ЛЕВСКИ / ГЪВКАВИ СХЕМИ НА ПЛАЩАНЕ (30%-40%-20%-10%) Агенция за недвижими имоти Адмирал Риъл Естейт продава ТРИСТАЕН в сърцето на ЛЕВСКИ .Имота е със следното разпределение: Входно антре, просторна всекидневна с кухненски бокс, две големи спални, санитарно помещение, таолет, тераса и прилежащо избено помещение. Сградата е с лесен и бърз достъп до административни учреждения, банки, училища, детски градини, автобусни спирки, детски площадки, аптеки, търговски центрове, супермаркети, козметични студия и заведения.Степен на завършване: жилището се издава по БДС.В сградата има опция за закупуване на ПАРКОМЯСТО.Агенция за недвижими имоти 'Адмирал риъл естейт' извършва всички необходими юридически и технически проверки на имота, организира всички етапи на сделката до нейното финализиране. Също така съдействаме за отпускане на банков кредит при преференциални условия от водещи банки в страната.Номер на обявата 227674 . За повече информация и огледи Валентина Игнатова. 0878 699 443
Виж всички обяви в admiralres.bazar.bg или тук
Особености
Тухла
Асансьор
С гараж
С паркинг
Видео наблюдение
Контрол на достъпа
За ремонт
Възможност за дан. кредит
За контакт:
0878699443
Брокер:
Валентина Игнатова
0878699443
Офис: Варна , бул.Цар Освободител 109 А офис 12
Още оферти от брокера: Продава | Дава под наем | Купува | Наема
Агенция:
АДМИРАЛ РИЪЛ ЕСТЕЙТ ЕООД
0886732489
АДМИРАЛ РИЪЛ ЕСТЕЙТ ЕООД logo
Медал за прослужено време
В imot.bg от 2016 г.
admiralres.imot.bg
Адрес:
област Варна, гр. Варна, бул.' Цар Освободител' 109А, офис 12
http://imotiadmiral.com
ИЗПРАТИ ЗАПИТВАНЕ
ИЗПРАТИ ЗАПИТВАНЕТО

Продава 3-СТАЕН
град Варна, Левски 1
Обява: 1c174980274830149

198 665 €
388 554.97 лв.
История на цената
(1 839 €, 3 596.77 лв./m2)

Не се начислява ДДС
ЗАПАЗИ ОБЯВАТА

Местоположение: град Варна, Левски 1

Виж още имоти от Варна или още Тристайни Апартаменти във Варна
Допълнителни данни за имотите в района и сравнение с други райони: Търсене в АРХИВ 2013 - 2025 г.











Добави/редактирай
вид имот и район
*Средните цени са определени чрез медиана стойност.
Още обяви в imot.bg
КОНТАКТИ | SMS КОДОВЕ | СТАТИСТИКА | ПОМОЩ | ОБЩИ УСЛОВИЯ | РЕКЛАМА | ТОП ОФЕРТА | Въпроси и предложения към imot.bg
Резон Медия | Имоти | Автомобили | Работа | Новини | Обяви | Преводи и легализация 2002-2025 ® Copyright imot.bg
© imot.bg ползва и препоръчва хостинг услугите на Bulinfo.net
Следвайте ни в: