ПАРКОМЯСТО 10 000 ЕВРО ! БОНУС ПОКРИВНА ТЕРАСА-17М2 !
реф. но: 4273
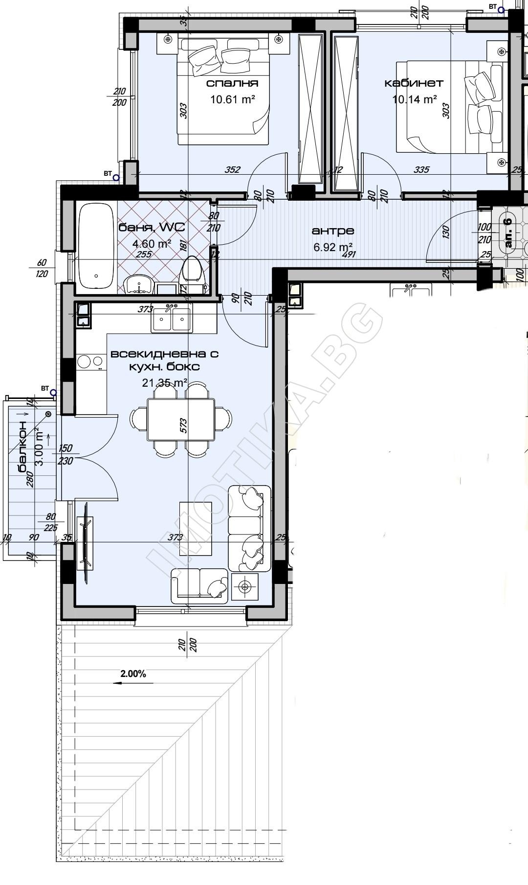
Апартаментът представлява: Коридор 7м2, Просторна Дневна 21м2 с Балкон 3м2 и 17м2 тераса, Две Спални по 10м2 и 10.6м2, Баня с Тоалет 4.6м2, мазе.
Степен на завършеност:
Общи части: 100% завършени гранитогрес;
Коридори, кухня и стаи: под циментова замазка, стени бяла гипсова мазилка, таван гипсова шпакловка;
Санитарен възел: стени и таван мазилка, под замазка, без санитарно обзавеждане;
Ел.инсталация: вътрешна и външна 100% завършени (плюс електромер);
ВиК външна: 100% завършена с монтиран главен водомер, вътрешна на тапа;
Дограма: Профили Rehau, Euro Design, 70 мм., 5 камери. Стъклопакет 24 мм 4 мм Бяло + 4 мм Енерджи.
Външна врата: блиндирана.
Всички общи части на сградата са изпълнени луксозно.
Монтирани изводи за климатици във всички стаи.
Локация: В близост до борова гора, к.к. Св. Константин и Елена.







