📌гр. Стара Загора, кв. Железник - изток 🌱
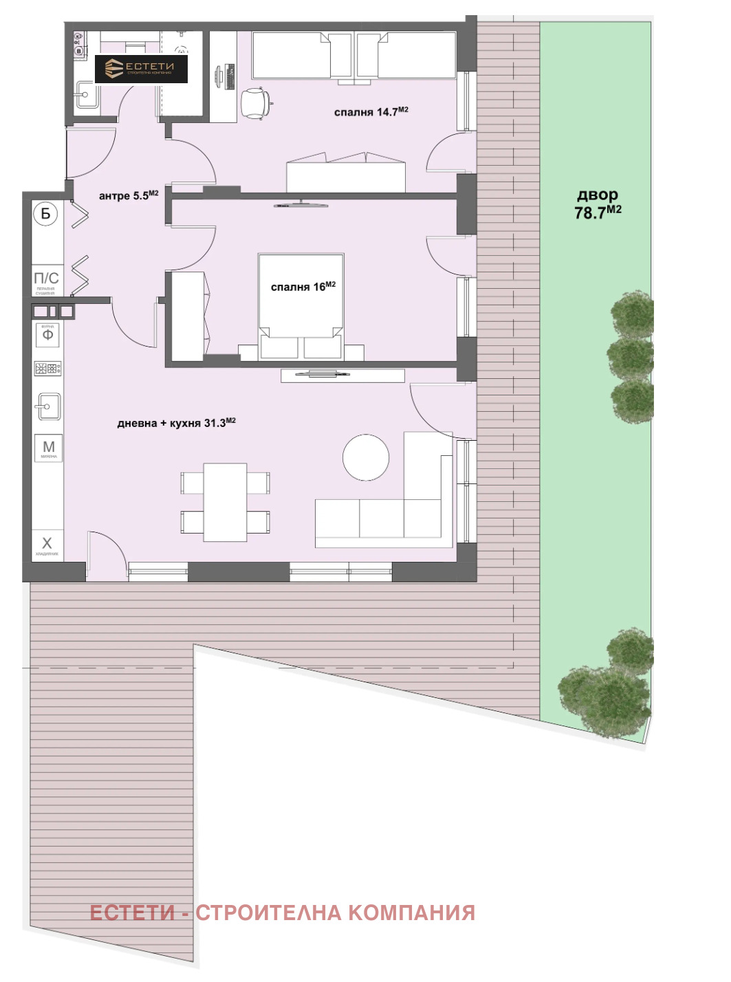
🏠Тристаен апартамент, състоящ се от антре, дневна с кухня, 2 спални, баня с тоалетна, килер, двор с площ- 78.70 кв.м. Квадратура - 99 кв.м.
🌏 Изложение- Югоизток
💎 Луксозно фоайе и общи части.
🚗 Комфортни подземни гаражи.
🚧 Контролиран достъп и видеонаблюдение.
⏳ Ограничени наличности на апартаменти с различни квадратури и изложения.
📲 За информация и огледи : не се колебайте да ни потърсите !🔎
Виж всички обяви в esteti.bazar.bg или тук
        
       
         
         
         
         
         
         
             
             
             
             
             
            






