📌 гр. Стара Загора, кв. Казански 📌
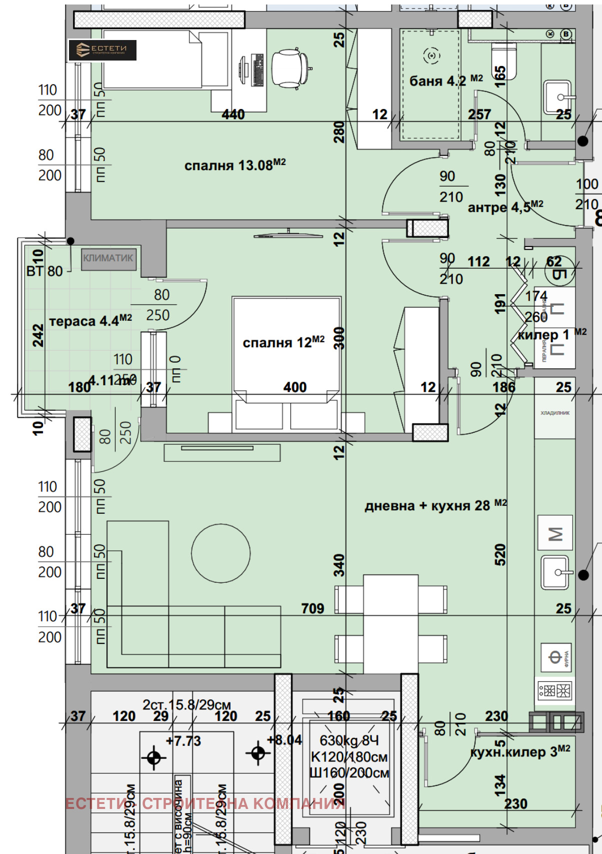
🏠 Тристаен апартамент, състоящ се от: антре, дневна с кухня, 2 спални, баня с тоалетна, килер, кухненски килер, тераса. Квадратура: - 96 кв.м.
💎 Луксозно фоайе и общи части.
🌏 Изложение- Запад
🚧 контролиран достъп и видеонаблюдение.
🛍️ Търговски обекти.
🚗 комфортни подземни гаражи.
📲 За информация и огледи: не се колебайте да ни потърсите!
Виж всички обяви в esteti.bazar.bg или тук







