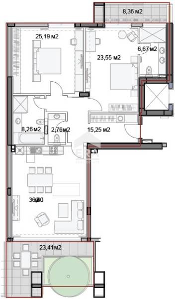
Ера Лайф обявява за продажба елегантен тристаен апартамент с площ 211,20 м2 (застроена площ 173,16 м2), разположен на седми етаж от осем в луксозен затворен комплекс на метри от плажната ивица. Имотът е със следното разпределение: антре (15,25) м2, дневен тракт с кухненска част (36,40) м2 с прекрасен изглед към морския бряг и голяма тераса (23,41) м2, две спални (25,19) м2 и (23,55) м2 със собствен санитарен възел (6,67) м2 и излаз на тераса (8,36) м2, самостоятелен WC (2,76) м2, комбинирано санитарно помещение (8,26) м2, ведно с прилежащо мазе (12,05) м2. Вж раздел 'План'. Статут: апартамент.
Жилището се намира в сграда със съвременна архитектура на брега на морето. В строежа са вложени най-висок клас материали и качествено изпълнение. Луксозните стълбища и общи части имат изградени вентилация, канализационна инсталация, включваща инсталация за отводняване на климатичните тела, пожароизвестителна инсталация, заземителна инсталация, надеждна електро инсталация с висока степен на защита. Предвидено е дежурно и евакуационно осветление. Отоплението, вентилацията и климатизацията в сградата са осигурени чрез напълно изградена инверторна VRV климатична система с охлаждане и отопление на фирма DAIKIN, с директно изпарение, с монтирани вътрешни тела за скрит таванен монтаж.
Сградата е изпълнена с вентилируема фасада с топлоизолация от минерална вата, а плоския покрив е топло, паро и хидро изолиран, което гарантира качество и дълготрайност. Прозорците са реализирани със стъклопакети висок клас алуминиева дограма Sch?co. Три броя панорамни асансьори на водещия световен производител Schindlеr са на разположение на живущите.
Имотът е подходящ за целогодишно живеене. Съчетанието от естествен парк с дървесни видове и красива плажна ивица, правят уникално предложението за продажба на този апартамент.
Разположен в малък тих залив с източно изложение, комплекса предлага великолепни условия за развлечения и отмора. Само на 8 км. южно от Златни пясъци, на 10 км. от град Варна и на 16 км. от Летище Варна, комплексът съчетава в себе си добра локация и приказно място за релакс. Комплекс Sunny Day е разположен между естествен парк с редки дървесни видове и красива плажна ивица. Код: 0706084
Оферта 0706084







