БЕЗ КОМИСИОН! Утвърден инвеститор с безупречна репутация! Разсрочени схеми на плащане! Гарантирана цена до Акт 16! Нисък процент общи части!
Предлагаме Ви за продажба апартамент в нова бутикова сграда само на пет жилищни етажа, изпълнявана по Европейски стандарт и качество, с модерна визия и стил.
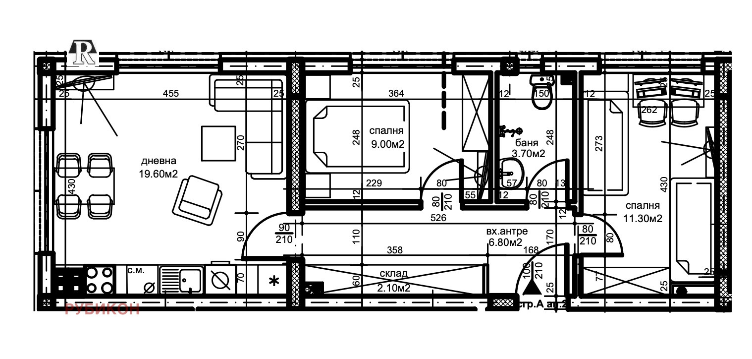
Разпределението на апартамента е както следва: просторна дневна с кухненски бокс( 19.60кв.м), спалня(9кв.м), спалня 11.30кв.м., баня с тоалетна(3.70кв.м), антре(6.80кв.м) и склад(2.10кв.м.). Застроена площ 63.70 кв.м. Общи части - 8,75 кв.м. Обща площ- 72.45кв.м.
Към жилището имате възможност да закупите и паркомясто или гараж, които се заплащат допълнително.
Без такси за управление и поддръжка!
Разсрочено плащане в процес на строежа :
- Първа вноска - 30% - при подписване на предварителен договор.
- Втора вноска - 20% - на средата на сграда
- Трета вноска - 20% - на акт 14
- Четвърта вноска - 20% - 3месеца след акт 14
- Пета вноска - 10% - когато е готова сградата.
АКТ 16 се очаква до април на 2027г.
Предлагаме и други апартаменти в същата сграда :
Едностайни апартаменти на цена от 49 799 за 40кв.м.
Двустайни апартаменти на цена от 53 499 за 47кв.м.
Тристайни апартаменти на цена от 83 499 за 72кв.м.
Нашите клиенти получават преференциални условия при отпускане на потребителски и ипотечни кредити от всички банки в страната.
Адресът на офиса ни в Пловдив е бул. Източен 47, етаж 2, офис 7
Оферта G.М. 06.03. 25







