Без комисион! Утвърден инвеститор с безупречна репутация!
Предлагаме Ви апартамент в нов комплекс, изпълняван по Европейски стандарт с високо качество, модерна визия и стил! Нисък процент общи части на тихо място!Комплексът съчетава модерна архитектура с висококачествени материали, предоставяйки комфорт и функционалност.
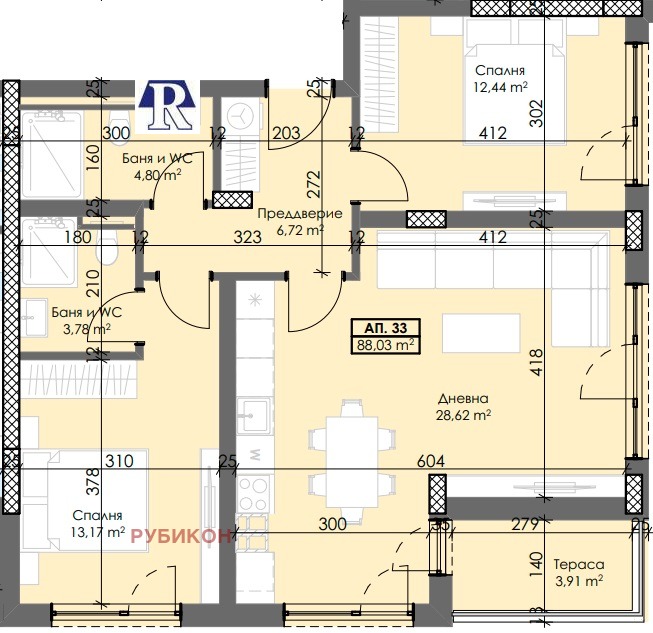
Разпределението на апартамента е както следва: просторна дневна(28.62кв.м), спалня(13.17кв.м.), спалня(12.44кв.м.), антре(6.72кв.м.), баня с тоалетна(4.80кв.м), баня с тоалетна(3.78кв.м) и тераса(3.91кв.м). Застроена площ(88.03кв.м.). Общо площ (103.50кв.м.). Изложение - ЮГ/Изток!
Към жилището имате възможност да закупите и паркомясто , което се заплаща допълнително.
Цената е актуална при плащане на цялата сума до края на 2024г!
Цена при разсрочено плащане в периода на строителството - 111780 евро.
Адресът на офиса ни в Пловдив е бул. Източен 47, етаж 2, офис 7







