имаме удоволствието да Ви представи апартаменти (Двустайни и тристайни) в луксозния бутиков комплекс в един от предпочитаните райони на гр. Пловдив - ж.к.. ТРАКИЯ !
Именно в жилищен комплекс, Тракия Сити Парк , Сграда без АНАЛОГ в града!
Налични апартаменти с подробна информация:
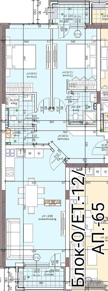
1. Апартамент 68, секция С на етаж 13 - кота +36,40м. със застроена площ 97,88 кв.м. състоящ се от всекидневна, две спални,
две тераси, две бани с тоалетни и склад. + 18,10кв.м. общи части = 115,98 кв.м. обща площ.
2. Апартамент 80, секция Т на етаж 15 - кота + 42,20м. със застроена площ 63,44 кв.м. състоящ се от всекидневна, спалня, тераса,
баня с тоалетна. + 11,50кв.м. общи части = 74,94 кв.м. обща площ.
3. Апартамент 65, секция Б на етаж 12 - кота + 33,50м. със застроена площ 100,26 кв.м. м състоящ се от всекидневна, две спални,
две тераси, две бани с тоалетни и склад. + 18,56 кв.м. общи части = 118,82 кв.м. обща площ.
4. Апартамент 65, секция Н на етаж 12 - кота + 33,50м. със застроена площ 102,85 кв.м. състоящ се от всекидневна, две спални, две тераси,
две бани с тоалетни и склад. + 18,62 кв.м. = 121,47 кв.м. обща площ.
5. Апартамент 71, секция В на етаж 13 - кота + 36,40м. със застроена площ 102,85 кв.м. състоящ се от всекидневна, две спални, две тераси,
две бани с тоалетни и склад. + 19,08 кв.м. общи части = 121,93 кв.м. обща площ.
6. Апартамент 7, секция Р на етаж 3 - кота + 7,40м. със застроена площ 68,74 кв.м. състоящ се от всекидневна, спалня, тераса, баня с тоалетна,
склад. + 12,93 кв.м. общи части = 81,67 кв.м. обща площ.
7. Апартамент 65, секция Т на етаж 12 - кота + 33,50м. със застроена площ 104,45 кв.м. състоящ се от всекидневна, две спални,
две бани с тоалетна, склад и две тераси. + 18,93 кв.м. общи части = 123,38 кв.м. обща площ.
8. Апартамент 65, секция О на етаж 12 - кота + 33,50м. със застроена площ 100,26 кв.м. състоящ се от всекидневна, две спални,
две тераси, две бани с тоалетни и склад. + 18,23 кв.м. общи части = 118,49 кв.м. обща площ.
За повече информация, свържете се на посочения телефон!
Поздрави!
Виж всички обяви в imoti_trakia.bazar.bg или тук
        
       
         
         
         
         
         
         
         
         
         
         
         
         
             
             
             
             
             
             
             
             
             
             
             
            






