брокерска къща Тракия имоти-АБ , има удоволствието да Ви представи апартаменти (Двустайни и тристайни) в луксозния бутиков комплекс в един от предпочитаните райони на гр. Пловдив - кв. Христо Смирненски.
Намиращ се на много комуникативно място, до търговски център, супер маркет, училища!
Цени от 950 до 1100 , БЕЗ КОМИСИОННА или други такси към агенцията. Сградата е пред акт 16, който ще бъде издаден до 08.2024г.
Апартаментите се състоят:
Тристаен
-Дневна с трапезария, две спални, две бани и WC, килер и две тераси.
С общи части 102м2 и чиста площ 80 кв.м
ЦЕНА: 152400
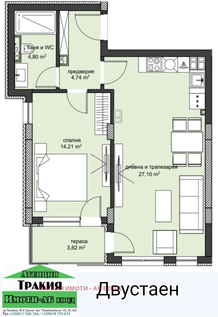
Двустаен:
-Дневна с трапезария, спалня, баня и WC, килер и тераса.
С общи части 74.22м2 и чиста площ 62.63м2.
ЦЕНА:106500 пред АКТ 16 е сградата.
Агенцията съдейства за отпускане на кредити, оформяне на документи и цялостното финализиране на сделката
Виж всички обяви в imoti_trakia.bazar.bg или тук
        
       
         
         
         
         
         
         
             
             
             
             
             
            






